Comentari guardat!
Només ho veuràs tú
Comment saved!
Añade tu valoración y/o un comentario para este anuncio. Sólo lo verás tú
289.000 € Avisa´m si baixa
ha baixat 10.000 €

Finca rústica a Cala Pi-Vallgornera Llucmajor

  • 300 m2
  • 963 €/m2

SOLAR URBANO DE 300 m² EN SA RÀPITA

¡Tu oportunidad de construir el hogar que siempre has imaginado en Sa Ràpita!

Se vende fantástico solar urbano de 300 m² a tan solo 150m del mar (1 minuto andando), ubicado en una zona residencial tranquila y con encanto, con acceso cómodo y excelente orientación. Una parcela ideal para desarrollar una vivienda unifamiliar amplia, con jardín, terrazas y piscina, donde disfrutar del auténtico estilo de vida mediterráneo.

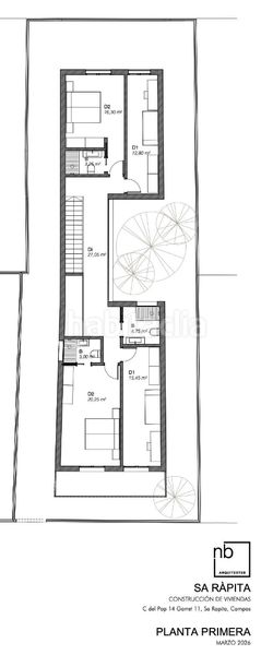
Cuenta con una construcción de 134 m² en planta baja, que debe adaptarse a la normativa actual, por lo que se podría aprovechar parte de esa estructura o hacer un proyecto nuevo de dos alturas, como se puede ver en el plano que aparece en las fotos.

Este solar ofrece múltiples posibilidades de construcción, adaptándose tanto a un proyecto familiar como a una inversión de futuro en una de las zonas con mayor proyección del sur de Mallorca.

Su ubicación es inmejorable: a pocos minutos de playas de arena blanca y aguas cristalinas, cerca del Club Náutico y rodeado de todos los servicios necesarios para el día a día.

Sa Ràpita es sinónimo de tranquilidad, naturaleza y calidad de vida, convirtiéndose en un lugar perfecto tanto para residencia habitual como para segunda vivienda.

No dejes pasar esta oportunidad única de invertir en calidad de vida junto al mar.

última modificació

Distribució

  • Superfície 300 m2
Anunci: 10577000006331

Ubicació

Cala Pi-Vallgornera

Navega pel mapa fent clic a sobre
T´avisem quan tinguem un anunci com aquest? Crea la teva alerta i nosaltres t´avisarem per correu electrònic quan hi hagin nous anuncis o siguin modificats
 

Contactar GESTPROPIEDAD

Referència de l´anunci habitaclia/04SBAP381RJ:

Veuràs el telèfon després d´enviar el contacte a l´anunciant perquè et pugui atendre.
Veuràs el telèfon després de contactar
Enviant…