Favorito y comentario
Àtic amb calefacció a Navas Barcelona
Característiques principals
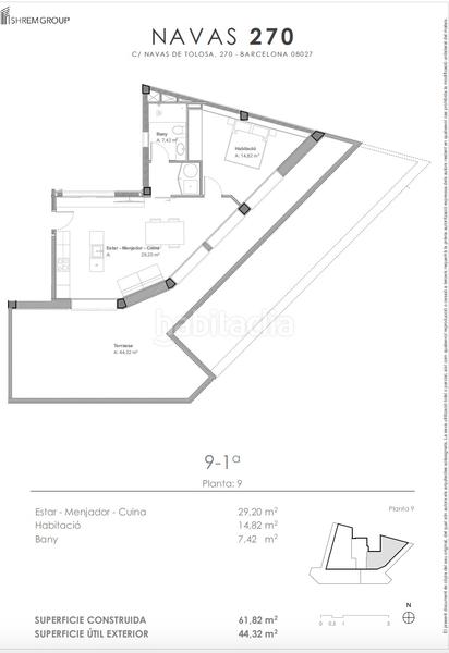
- 91 m2
- 1 hab.
- 1 bany
- 6.044 €/m2
Informació detallada
Ático de obra nueva con terraza en el Clot
Engel & Völkers se complace en presentar el último piso disponible de esta exclusiva promoción: un espectacular ático con una amplia terraza orientada al sur y vistas inmejorables a la ciudad y a sus emblemáticos monumentos y, a lo lejos, al mar.
Esta luminosa vivienda destaca por su distribución funcional. Dispone de una zona de día diáfana que integra salón-comedor y cocina en un solo ambiente, una habitación tipo suite con baño completo y una segunda habitación- estudio, polivalente ideal como despacho o vestidor.
La gran terraza accesible desde el salón y el dormitorio principal, inunda el ático de luz natural durante todo el día, creando un ambiente cálido y acogedor.
Todo el edificio ha sido completamente renovado con materiales de alta calidad, lo que le ha permitido obtener la máxima calificación energética 'A'. La climatización está garantizada mediante un sistema centralizado de aerotermia, que ofrece calefacción y refrigeración eficientes, con control individual en cada vivienda. Las ventanas de doble acristalamiento, junto con el aislamiento acústico en los dormitorios, aseguran confort y tranquilidad.
El interior del piso cuenta con acabados contemporáneos: suelos laminados de madera, porcelana en zonas húmedas, y cocinas a medida con encimeras de Silestone.
El edificio cuenta además con dos ascensores que llegan hasta la azotea comunitaria, con dos terrazas, desde donde se puede disfrutar de unas vistas panorámicas impresionantes de Barcelona.
Esta promoción se encuentra en el barrio de Navas, dentro del distrito de Sant Andreu de Barcelona. Es una zona residencial consolidada, tranquila pero muy bien conectada con el resto de la ciudad. El barrio ha experimentado en los últimos años una mejora notable tanto en infraestructuras como en servicios, y combina vida de barrio tradicional con una creciente modernización.
En sus alrededores hay una buena oferta gastronómica con bares de tapeo y terrazas. También hay una buena oferta educativa, con escuelas públicas, concertadas y centros de secundaria, además de guarderías municipales. Es destacable que es una zona bien equipada en cuanto a servicios deportivos, con gimnasios y centros cívicos que ofrecen múltiples actividades culturales, deportivas y comunitarias.
La comunicación con el centro de Barcelona es excelente gracias a la línea 1 del metro (parada Navas a pocos minutos a pie), que conecta directamente con Plaza Catalunya en menos de 10 minutos. Además, la estación de tren El Clot-Aragó se encuentra a escasa distancia y ofrece líneas de Rodalies que permiten llegar rápidamente a otros puntos clave de la ciudad y su área metropolitana. La zona también cuenta con muchas líneas de autobús y acceso fácil a carriles bici y estaciones de Bicing, lo que la hace muy accesible para moverse sin coche. El distrito tecnológico 22@ y el centro comercial Glòries también están muy cerca, a unos 15 minutos caminando o en bici.
En definitiva, la promoción está situada en un barrio bien equipado, con todos los servicios a mano, vida de barrio activa y excelentes conexiones con el centro de Barcelona y zonas clave como Glòries o el 22@.
última modificació
Distribució
- 1 habitació
- Superfície 91 m2
- 1 bany
- Traster
Característiques generals
- Calefacció
- Sense plaça aparcament
- Aire Acondicionat
- Any construcció 1953
Equipament comunitari
- Ascensor
Galeria
Ubicació
Navas
