Favorito y comentario
Àtic a L´Antiga Esquerra de l´Eixample Barcelona
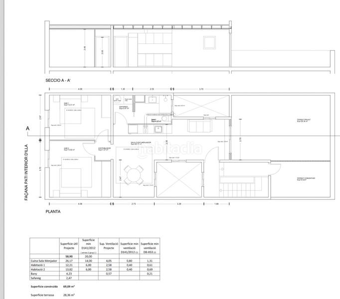
Característiques principals
- 68 m2
- 2 hab.
- 1 bany
- 9.338 €/m2
Informació detallada
Piso reformado con terraza en Consell de Cent Eixample Derecho
Piso reformado con terraza en Consell de Cent – Eixample Derecho
En pleno Eixample, en la prestigiosa calle Consell de Cent, presentamos esta vivienda reformada con 68 m² útiles + 14 m² de terraza soleada.
La propiedad se distribuye en 2 dormitorios dobles, 1 baño completo, un salón-comedor luminoso con salida a terraza y una cocina equipada de diseño moderno.
Dispone de doble orientación (calle y patio de manzana), lo que aporta luz y ventilación natural durante todo el día.
Reformado con buenas calidades, cuenta con aire acondicionado y calefacción por splits.
Situado en una quinta planta real, el edificio está en proceso de instalación de ascensor (ya incluido en el precio de venta), lo que revalorizará notablemente la finca.
Ubicación privilegiada: a pocos pasos de Passeig de Gràcia y rodeado de todos los servicios, comercios, restaurantes y excelentes comunicaciones de transporte público.
Una oportunidad única de vivir en una de las calles más demandadas de Barcelona en un piso reformado con terraza.
¿Tienes dudas con la hipoteca? ¡Bamberry cuenta con asesores financieros que te pueden ayudar sin coste y sin compromiso! El precio de la oferta puede ser modificado o darse de baja sin previo aviso.
Todos los datos expuestos son meramente orientativos. El precio no incluye impuestos ni gastos. Se debe añadir a la compra en viviendas de segunda mano el ITP, en viviendas de Obra Nueva el IVA y AJD y en ambos casos los honorarios de notaria y registro.
última modificació
Distribució
- 2 habitacions
- Superfície 68 m2
- 1 bany
Característiques generals
- Any construcció 1910
Equipament comunitari
- Ascensor
Galeria
Ubicació
L´Antiga Esquerra de l´Eixample
