Comentari guardat!
Només ho veuràs tú
Comment saved!
Afegeix la teva valoració i/o un comentari per aquest anunci. Només el veuràs tu
239.500 € Avisa´m si baixa
ha baixat 9.500 €

Casa amb aparcament a El Higuerón Córdoba

  • 337 m2
  • 4 hab.
  • 3 banys
  • 711 €/m2

CASA DE TUS SUEÑOS EN VILLARRUBIA CON PISCINA !!

Construida en 2008, esta vivienda familiar se ubica en La Barriada de Villarrubia y ofrece una experiencia de vida excepcional en tres plantas: baja, primera y ático con azotea. Espacios amplios, luminosos y detalles de calidad definen cada rincón.

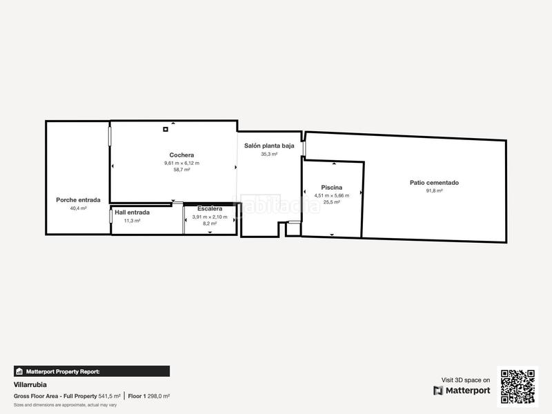
Al entrar, un porche predispone a la privacidad. El vestíbulo conectado con el garaje de 3 plazas introduce a un salón comedor con chimenea, ideal para disfrutar de las mejores reuniones familiares y con amigos. La cocina office, totalmente equipada, y el aseo con ventilación natural completan esta planta pensada para la comodidad.

Desde aquí accedemos a la auténtica joya de la casa: un gran patio cementado de 90m2 con una piscina de dimensión 5x4 metros, de tres años de uso, con área de depuradora, ducha con depósito y opción de agua caliente del pozo, perfecta para relajarse o para cuidar plantas en un entorno de bienestar.

La escalera de mármol trae al vestíbulo de la planta alta, donde se abre otro salón con split de aire acondicionado y cocina office, ambos con salida al balcón. Cuatro habitaciones, incluida una suite principal con baño, dos armarios empotrados, split de aire acondicionado y balcón, crean un espacio íntimo. Las tres habitaciones secundarias cuentan con armarios y salida al balcón, una de ellas también con split de aire acondicionado. Un segundo baño completa esta planta.

El ático ofrece una buhardilla diáfana y una azotea con vistas despejadas, un refugio ideal para crear un rincón chill out.

Los suelos de gres, puertas de madera y carpintería de aluminio marrón con doble acristalamiento garantizan comodidad y ahorro energético. Además, la vivienda cuenta con pozo propio y placas solares (3 500 W contratados) para agua caliente sanitaria y electricidad, un plus de sostenibilidad. Además, la vivienda cuenta con un espacio para instalar un ascensor que dé acceso a todas las plantas, pensado para adaptarse a cada etapa de la vida.

Esta casa es una opción excelente para quien busca un hogar con todas las comodidades a mano, amplio, luminoso y con una zona de piscina ideal para disfrutar. Perfecta para familias que desean calidad de vida sin renunciar al espacio y al bienestar. No dudes en contactarnos para más información o para concertar una visita.

¿Quieres descubrirla? Ponte en contacto y agenda tu visita, comienza a imaginar tu vida en este hogar especial.

La vivienda se vende sin muebles por lo que no se incluyen en el precio.

Inmobiliaria Inmolike, su inmobiliaria de confianza en Córdoba.

INFORMACIÓN ADICIONAL: Para cumplir con la normativa vigente tenemos a disposición del cliente el Documento Informativo Abreviado (DIA) así como la información mínima solicitada en el artículo 31 de la Ley 12/2023, de 24 de mayo, por el Derecho a la Vivienda. Los precios indicados no tienen caducidad, pero pueden ser alterados sin previo aviso. En caso de venta, el precio corresponde únicamente al inmueble. Los gastos de la compraventa serán según ley (Notaría, Registro de la Propiedad e Impuestos) y no están incluidos en el precio del inmueble reflejado, al igual que no están incluidos los honorarios de la Agencia Inmobiliaria que ascienden a un 2% del precio final de venta más el 21% de IVA (con un mínimo de 3.000 € más el 21% de IVA) en caso de compraventa.

última modificació

Distribució

  • 4 habitacions
  • Superfície 337 m2
  • 3 banys

Característiques generals

  • Plaça aparcament
  • Any construcció 2008
  • Certificat energètic :
    Consumo:
    C
    81 kW h m2 / año
    Emisiones:
    B
    13 kg CO2 m2 / año
Anunci: 25472000001730

Ubicació

El Higuerón

Navega pel mapa fent clic a sobre
239.500 € Preu de l´anunci
1.102 €/m2€/m2 distrito
711 €/m2€/m2 de l´anunci
35% més econòmic que la mitja*
Veure evolució €/m2 a Córdoba (Periurbano Oeste - Sierra)
T´avisem quan tinguem un anunci com aquest? Crea la teva alerta i nosaltres t´avisarem per correu electrònic quan hi hagin nous anuncis o siguin modificats
 

Contactar INMOLIKE

Referència de l´anunci habitaclia/ksv-AH1681:

Veuràs el telèfon després d´enviar el contacte a l´anunciant perquè et pugui atendre.
Veuràs el telèfon després de contactar
Enviant…