Favorito y comentario
Casa amb aparcament a San Isidro Granadilla de Abona
Característiques principals
- 296 m2
- 3 hab.
- 3 banys
- 1.682 €/m2
Informació detallada
En el corazón de San Isidro se encuentra esta casa espectacular con una gran variedad de espacios muy bien pensados en una superficie total de 296 m2. Construida en el año 2020, ofrece el esplendor de una vivienda nueva, hecha con detalles lujosos y materiales de alta calidad.
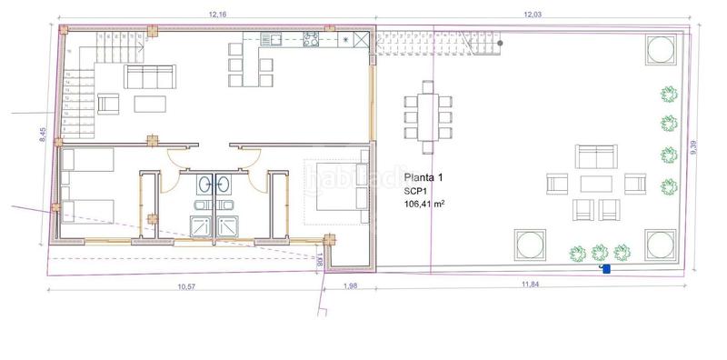
Entrando en la casa, les acoge un recibidor que da acceso a un baño, a la sala de telecomunicaciones (en la cual está también un descalsificador de agua y las pantallas de las cámaras de seguridad) y a un garaje gigantesco de más de 200m2! Un espacio diáfano en el cual caben varios vehículos y en el que se pueden almacenar muchas pertenencias gracias a los amplios armarios de aluminio, hechos para proteger lo que se encuentra dentro del polvo del garaje.
Subiendo unas escaleras, se accede a otro espacio diáfano: el corazón del hogar constituido por el salón, comedor y amplia cocina americana. La luz del día entra tanto por las claraboyas del salón como por el ventanal que se abre en una terraza espectacular.
Desde el salón, se accede a dos habitaciones ensuite, cada una con su amplio baño privado agrementado de ventanas hacia el exterior.
La primera terraza ofrece un gran espacio de vida adicional al aire libre y del cual se puede disfrutar a cualquier hora del día gracias a la pérgola y a los estores eléctricos (que se cierrran automáticamente en caso de viento violento!) que proporcionan una sombra agradable.
Desde esta terraza, se accede a un pequeño estudio de unos 27m2 con salón, habitación y baño privado: ¡un lujo para ofrecer independencia y privacidad a sus invitados!
El salón, las habitaciones y el estudio tienen aire acondicionado.
En la planta superior, la casa ofrece una azotea espectacular de 110 m2 con vistas al mar y al Teide. Tiene un gran espacio de almacenamiento, una placa solar que proporciona el agua caliente para la vivienda y una ducha exterior.
A pocos minutos andando se encuentran tiendas, bares, restaurantes, supermercados… sin embargo, la casa está ubicada en un callejon sin salida, lo que garantiza paz, tranquilidad y silencio.
Que sea para vivir o como inversión, ¡esta propiedad es una joya!
IBI: unos 400,-€ anuales
última modificació
Distribució
- 3 habitacions
- Superfície 296 m2
- Terreny 296 m2
- 3 banys
Característiques generals
- Plaça aparcament
- Aire Acondicionat
- Any construcció 2020
Galeria
Ubicació
San Isidro
