Favorito y comentario
Casa amb piscina a Palomas Madrid
Característiques principals
- 337 m2
- 4 hab.
- 3 banys
- 3.843 €/m2
Informació detallada
Chalet adosado en venta Campo De Las Naciones
Huspy presenta este impresionante chalet adosado en esquina, ubicado en el exclusivo barrio residencial de Palomas, en una tranquila comunidad de solo 8 vecinos. Con una superficie construida de 337 m² distribuidos en 4 plantas, esta propiedad ofrece una combinación perfecta de espacios amplios y privados para disfrutar en familia. A medida que exploras las diferentes plantas, descubrirás estancias luminosas y confortables que invitan a relajarse y disfrutar del entorno. En una parcela de 129 m², este chalet proporciona un espacio amplio y luminoso para vivir, perfecto para aquellos que buscan una vida tranquila y familiar en un entorno exclusivo.
Características Destacadas
Ubicación Exclusiva: Barrio residencial de Palomas, en una tranquila comunidad de solo 8 vecinos.
Espacios Amplios: 337 m² distribuidos en 4 plantas, con estancias luminosas y confortables.
Privacidad y Comodidad: Diferentes espacios para compartir en familia y disfrutar de la privacidad.
Parcela Amplia: 129 m² de parcela para disfrutar al aire libre.
Distribución y Características
La propiedad se distribuye en 4 plantas:
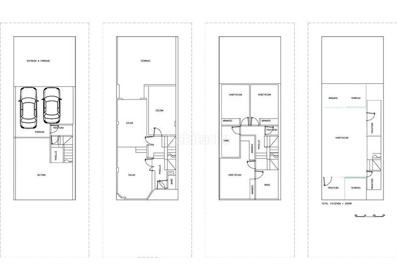
Sótano y Garaje: Consta de un sótano de 38 m² con barra de bar de obra y un trastero anexo, además de un garaje con capacidad para 2 coches y 2/3 motos.
Planta Calle: Acceso a la vivienda por la planta calle, que incluye un recibidor, un aseo, un salón-comedor de 38 m² con salida directa al jardín, y una cocina independiente de 16 m² también con salida al jardín.
Primera Planta: Cuenta con tres dormitorios, incluyendo un dormitorio principal con baño en suite y zona de vestidor, y dos dormitorios simétricos con armarios empotrados que comparten un baño completo grande y un trastero.
Ático: Consta de una sala diáfana de más de 35 m² con dos terrazas, y tres cuartos de almacenaje.
Equipamiento y Características Adicionales:
- Calefacción: Caldera estanca de gas natural para agua caliente sanitaria y calefacción mediante radiadores.
- Aire Acondicionado: Tipo split/bomba de calor en todas las estancias.
- Carpintería: Metálica de alta calidad de Kömmerling, con ventanas oscilo batientes.
- Piscina Comunitaria: La urbanización cuenta con una piscina compartida a escasos 50 metros, con piscina para adultos y piscina infantil, zona de césped y vestuarios.
Certificado Energético: D.
Ubicación y Accesibilidad
El chalet se encuentra estratégicamente ubicado cerca de áreas de influencia importantes, como el aeropuerto y IFEMA, centros comerciales, parques, colegios internacionales, hoteles, hospitales y empresas multinacionales. La accesibilidad es excelente, con fácil acceso a la A-2, M-11, M-12, M-40 y M-30, y a solo 5 minutos andando de la estación de metro de Canillejas y numerosos autobuses que se dirigen al centro de Madrid.
Características Básicas
Chalet Adosado: Construido en 1997, en esquina, de un grupo de ocho.
Superficie: 337 m² construidos y parcela de 129 m².
Dormitorios: 4 dormitorios, incluyendo ático y sótano.
Baños: 2 baños completos y 1 aseo.
Almacenamiento: 4 cuartos de almacenamiento y 1 trastero.
Jardín: 38 m².
Garaje: Con capacidad para 2 coches y 2/3 motos.
Gastos de Comunidad: Muy bajos, 400€/año.
Gastos de Piscina: 332€/año.
Contacta con Huspy para más información [IW]
última modificació
Distribució
- 4 habitacions
- Superfície 337 m2
- 3 banys
- Traster
Característiques generals
- Aire Acondicionat
- Any construcció 1997
Equipament comunitari
- Piscina Comunitària
Galeria
Ubicació
Palomas
