Favorito y comentario
Casa a Olletas - Sierra Blanquilla Málaga
Característiques principals
- 290 m2
- 3 hab.
- 4 banys
- 2.655 €/m2
Informació detallada
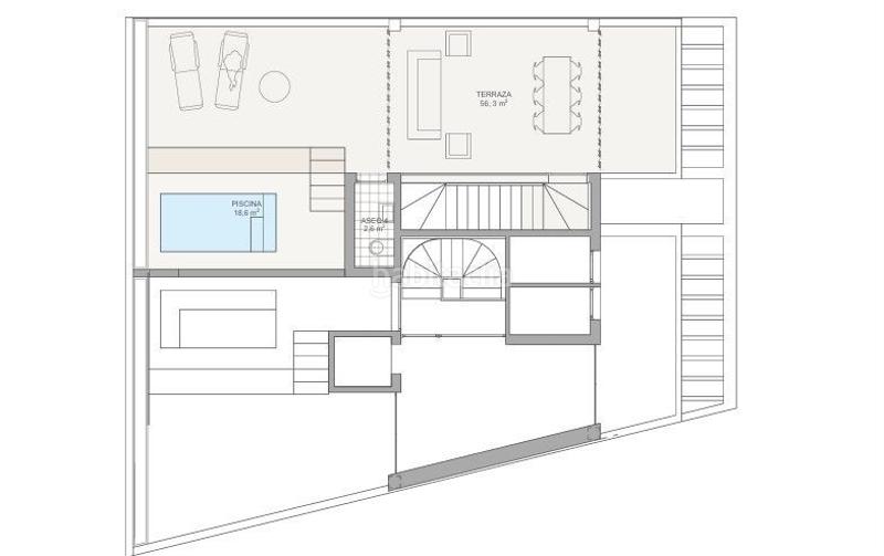
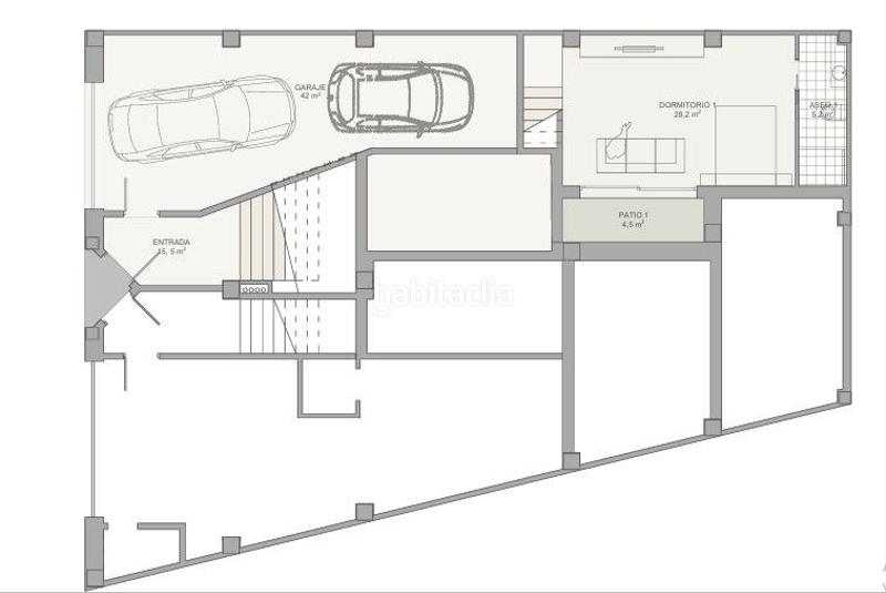
Chalet adosado totalmente reformado, materiales de primeras calidades, salon comedor con cocina Americana equipada, 3 dormitorios, 3 baños y 1 aseo, vestidor, patio de 14 m2, y un solarium de 85 m2 con piscina propia de unos 18 m2, tiene 2 plazas de garaje.
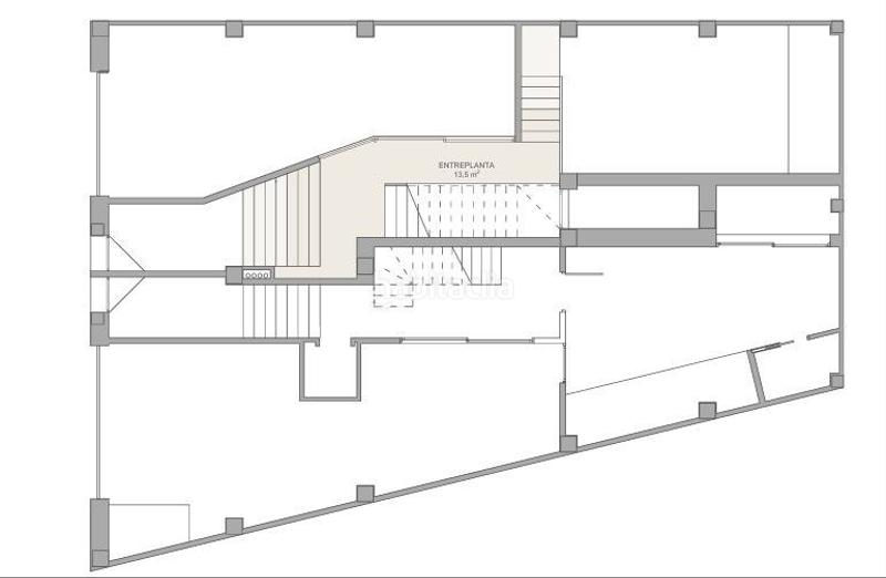
La distribución es la siguiente, en la planta baja tienes dos plazas de aparcamientos y un dormitorio o trastero y patio de 4,5 m2, primera planta tiene dos dormitorios, dos baños, vestidor y una cocina tipo Americana con un patio de unos 14m2, y en la planta alta tienes un solarium con una piscina de unos 18 m2 y un aseo.
Decreto Junta de Andalucía del 11 de Octubre, se informa a los clientes que los gastos notariales, registrales, los impuestos (ITP, IVA), y otros gastos inherentes a la compra, no están incluidos en el precio. [IW]. [IW]
última modificació
Distribució
- 3 habitacions
- Superfície 290 m2
- Terreny 80 m2
- 4 banys
- Traster
Característiques generals
- Aire Acondicionat
Galeria
Ubicació
Olletas - Sierra Blanquilla Hermanos Oliver
