Favorito y comentario
Casa amb calefacció piscina a Coloma Nucia (la)
Característiques principals
- 167 m2
- 3 hab.
- 4 banys
- 3.593 €/m2
Informació detallada
Exclusivas viviendas de nueva construcción en La Nucía con solárium, garaje y piscina
Descubra esta excepcional promoción de villas modernas de nueva construcción en La Nucía, donde la arquitectura, el confort y el entorno mediterráneo se unen en perfecta armonía. Cada villa está situada en su propia parcela privada de 334-540 m², diseñada con jardines paisajísticos, terrazas y una piscina privada para disfrutar del estilo de vida de la Costa Blanca.
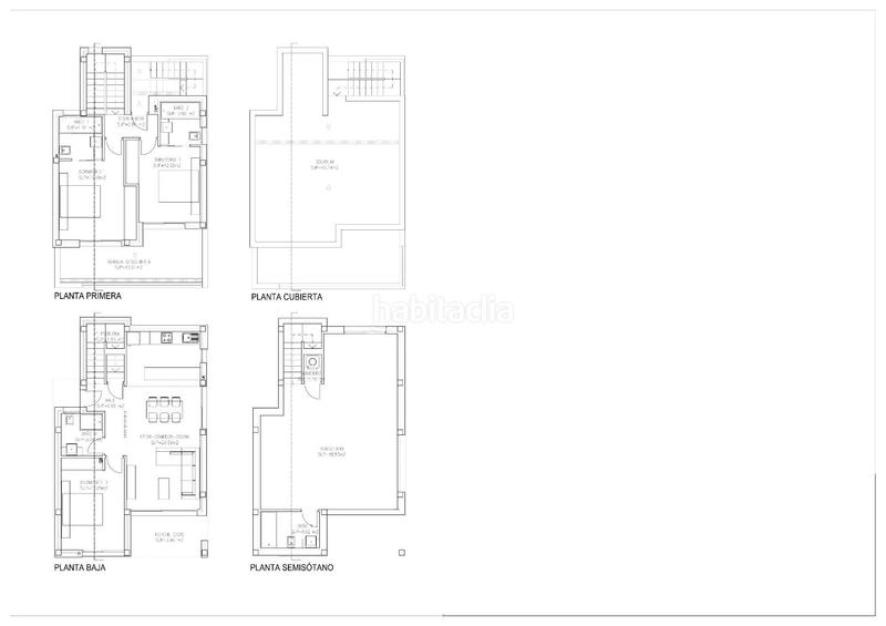
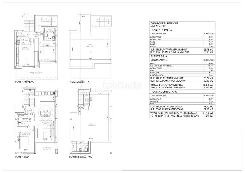
Las viviendas se distribuyen en dos plantas principales más un semisótano versátil. La planta baja cuenta con un elegante salón-comedor diáfano con cocina integrada, conectado a la terraza exterior y a la piscina. En la primera planta, dos dormitorios con baño privado disfrutan cada uno de su propia terraza privada, mientras que desde el pasillo se accede directamente a un gran solárium con impresionantes vistas al mar.
El semisótano ofrece la máxima flexibilidad, con un espacioso tercer dormitorio, un cuarto de baño y un espacio de ocio polivalente. Aquí también encontrará un garaje privado con capacidad para dos vehículos.
La construcción y los acabados de alta calidad garantizan el confort durante todo el año, con calefacción por suelo radiante en los baños, un sistema de agua caliente aerotérmica, doble acristalamiento y un excelente aislamiento. Otras características adicionales son la puerta de garaje eléctrica, la preinstalación para paneles solares y la recarga de vehículos eléctricos, y la opción de personalizar la vivienda con persianas motorizadas, instalación completa de aire acondicionado o incluso un dormitorio adicional.
Situadas en una tranquila zona residencial rodeada de naturaleza, pero cerca de todos los servicios, las villas disfrutan de excelentes conexiones con La Nucía, Altea y Benidorm. Las playas, los campos de golf, los colegios y los centros comerciales se encuentran a poca distancia en coche, lo que hace que estas viviendas sean ideales como residencia permanente, refugio vacacional u oportunidad de inversión en la Costa Blanca.
*La información de este anuncio es meramente informativa y puede contener errores. [IW]
última modificació
Distribució
- 3 habitacions
- Superfície 167 m2
- 4 banys
- Cuina Tipus Office
Característiques generals
- Calefacció
- Piscina pròpia
- Aire Acondicionat
Galeria
Ubicació
Coloma
