Favorito y comentario
Casa amb calefacció aparcament a Roca del Vallès (La)
Característiques principals
- 130 m2
- 4 hab.
- 3 banys
- 3.000 €/m2
Informació detallada
Casa adosada en el corazón de La Roca del Vallès
Te damos la bienvenida a esta magnífica casa en La Roca, una joya de 130m² que combina a la perfección comodidad, funcionalidad y calidad de vida. Construida en 1989, esta propiedad ofrece un espacio ideal para familias que buscan amplitud y bienestar.
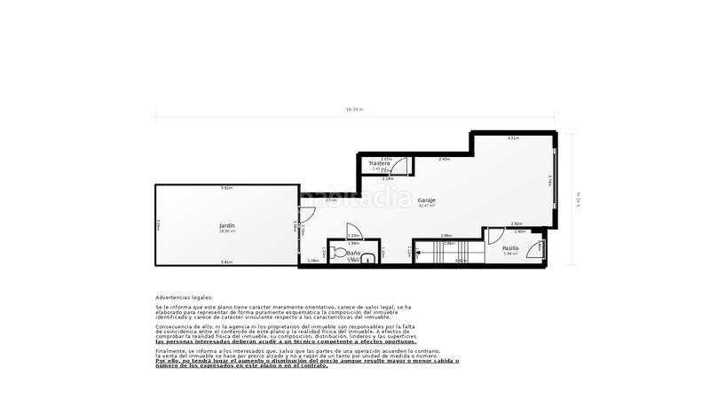
A nivel de calle encontramos la entrada principal y el acceso al garaje, con capacidad para dos vehículos. En esta planta también disponemos de un práctico trastero, un baño completo con plato de ducha y un agradable patio de unos 20 m², perfecto para disfrutar del aire libre con total privacidad.
Al ingresar a la vivienda, un acogedor recibidor nos da la bienvenida e invita a recorrer cada rincón del hogar. Subiendo unas cómodas escaleras, accedemos a la primera planta, donde destaca un amplio salón-comedor con chimenea de obra y una encantadora barra de obra vista. Este espacio cuenta con salida directa a un balcón, aportando luz natural y conexión con el exterior.
A la izquierda encontramos una cocina independiente, muy luminosa y funcional, también con acceso a la terraza de cinco m². En esta misma planta se ubica un aseo de cortesía.
La planta superior alberga la zona de descanso, con cuatro dormitorios bien distribuidos: dos habitaciones dobles —una de ellas con salida a una terraza privada de 5 m²— y dos dormitorios individuales. Todas las estancias cuentan con buena iluminación natural y ventilación.
La Roca del Vallès es una pequeña población perteneciente al Vallès Oriental, a 5 minutos de Granollers y del centro comercial La Roca Village, y a 25 min de Barcelona.
Dispone de unas comunicaciones excelentes, tocando la autopista AP7 y la autovía C60 hacia la costa, y muy cerca de la autovía C17 y la autopista C33.
Dispone de todos los servicios (escuelas, CAP, farmacias….) sin dejar de perder ese entorno tranquilo, próxima tanto a la costa como a la falda del Montseny.
última modificació
Distribució
- 4 habitacions
- Superfície 130 m2
- 3 banys
Característiques generals
- Calefacció
- Plaça aparcament
- Sense aire acondicionat
- Any construcció 1989
Galeria
Ubicació