Favorito y comentario
Casa amb calefacció aparcament a Tàrrega
Característiques principals
- 241 m2
- 4 hab.
- 2 banys
- 1.328 €/m2
Informació detallada
¡Tu Nuevo Hogar en Tàrrega Te Espera!
Descubre la oportunidad de construir la casa de tus sueños en Tàrrega, en una zona residencial tranquila y en crecimiento, ubicada próxima al encantador Parque de Sant Eloi, la futura zona verde y estación de autobuses. Este proyecto es perfecto para quienes buscan un entorno sereno y bien conectado en Tàrrega.
Detalles del Proyecto
Parcela y Construcción:
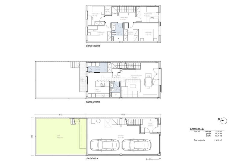
• Parcela: 120 m²
• Superficie construida total: 214 m²
• Jardín: 48 m²
• Habitaciones: 4
• Baños: 2
• Cocina Americana: 13.50 m² con lavadero
• Comedor: 30 m²
• Garaje: 55 m² para 2 coches
Características Destacadas
Acabados y Materiales de Alta Calidad:
• Pavimento General: Laminado con zócalo MDF lacado en blanco.
• Barandillas Interiores: De obra.
• Calefacción: Por suelo radiante, proporcionando confort en invierno y refrescando en verano, con Aerotermia* de Bajo Consumo Energético.
• Baños y Cocina: Pavimento laminado con tratamiento de estanqueidad y revestimientos de baldosas cerámicas.
• Cocina: Encimera de granito nacional pulido de 2 cm de grosor, con una variedad de acabados y combinaciones en mobiliario, y electrodomésticos Teka.
Opcionales: Disponemos de una gran variedad de acabados y opciones para ofrecerte un hogar personalizado.
Ventilación:
• Recuperador de Calor: Disfruta de una casa ventilada con mínima pérdida de temperatura interior, con aire de admisión filtrado constantemente, reduciendo el polvo y otras partículas ambientales. Durante las noches de verano, deja entrar el aire fresco y lo mantiene durante el día.
Barandillas Interiores:
• De Cristal Laminado: Con apoyo escondido, una opción moderna y elegante.
Persianas Motorizadas:
• Control Inteligente: Controla las persianas desde una aplicación móvil o mediante un interruptor inalámbrico, ofreciendo comodidad y eficiencia.
Garantía y Calidad
La construcción será realizada por un constructor local con excelente reputación y referencias, asegurando una ejecución impecable y entrega puntual.
Tiempo de Entrega y Precio
Tiempo de entrega: En aproximadamente 8 meses, tendrás las llaves en mano de tu nuevo hogar.
Precio cerrado: 306.000 €, que incluye el terreno, todas las tasas, proyecto arquitectónico, materiales y mano de obra. Gastos de compraventa adicionales no incluidos.
¿Es Este Tu Nuevo Hogar?
Este proyecto está diseñado para personas de 30 a 50 años aproximadamente, que buscan establecerse en Tàrrega en un hogar moderno, cómodo y en una ubicación inmejorable. La oferta de obra nueva en la zona es escasa, y esta es una oportunidad única de obtener un hogar de alta calidad a un precio competitivo.
No Te Ofrecemos una Vivienda, Te Ofrecemos un Hogar
No se trata solo de comprar una vivienda, sino de construir el nuevo hogar para tu familia en un entorno pensado para disfrutar cada momento. Imagina vivir en un lugar donde cada detalle ha sido cuidadosamente diseñado para proporcionar comodidad y felicidad a tu vida cotidiana.
¿Te interesa saber más? ¡Contáctanos hoy y descubre cómo hacer realidad el sueño de tu nuevo hogar en Tàrrega!
última modificació
Distribució
- 4 habitacions
- Superfície 241 m2
- Terreny 120 m2
- 2 banys
- Cuina Tipus Office
Característiques generals
- Calefacció
- Plaça aparcament
- Sense aire acondicionat
Galeria
Ubicació
Carrer Santes Espines
