Favorito y comentario
Casa amb calefacció piscina a Monte Real Torrent
Característiques principals
- 315 m2
- 6 hab.
- 2 banys
- 1.429 €/m2
Informació detallada
CHALET REFORMADO EN 5000 M A 20 MINUTOS DE VALENCIA
CHALET REFORMADO EN 5000 M² A 20 MINUTOS DE VALENCIA
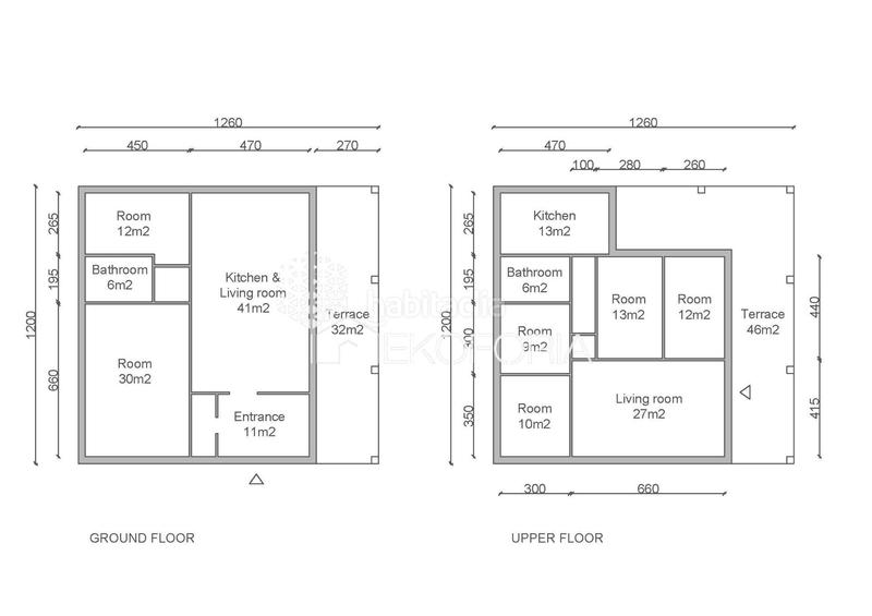
A tan solo 20 minutos de Valencia, esta villa mediterránea renovada en 2023 ofrece un entorno tranquilo y moderno, ideal para los amantes de la naturaleza. Con 317 m² de superficie construida, se distribuye en dos niveles de 100 m² cada uno, lo que permite diversas configuraciones: apartamentos independientes, alquiler turístico o espacios de trabajo. La casa cuenta con 6 habitaciones, 2 salones, 2 cocinas y 2 baños.
El terreno de 5000 m² alberga un jardín con árboles frutales, huerto, piscina y un pozo decorativo. La propiedad disfruta de una reforma sostenible, con paneles solares, aislamiento térmico y ventanas de doble acristalamiento, lo que asegura una gran eficiencia energética.
Un amplio aparcamiento, un portal de entrada y una fosa séptica conforme a la normativa completan la propiedad. Situada cerca de Valencia, del golf, de colegios y de la playa, esta villa combina confort moderno y naturaleza.
Para una visita o más información, contáctenos en francés, inglés o español, indicando su número de teléfono (con el prefijo) y su correo electrónico.
Con Ekoforia Properties, le acompañamos en la venta, alquiler y búsqueda de propiedades exclusivas en la hermosa región de Valencia. Especializados en el mercado internacional, ofrecemos un servicio personalizado adaptado a las necesidades de los residentes locales y de los clientes extranjeros para hacer realidad sus proyectos inmobiliarios. Más información en nuestro sitio web. ¡Hasta pronto!
Nota: La información contenida en el anuncio es meramente informativa y no contractual. Puede ser modificada por razones comerciales o contractuales, y aunque ha sido comprobada, pueden existir errores u omisiones. Los gastos de compra y los honorarios de agencia no están incluidos en el precio de publicación. Inscripción en el RAICV nº 4353 y seguros de responsabilidad civil profesional y de caución en vigor. [IW]
última modificació
Distribució
- 6 habitacions
- Superfície 315 m2
- Terreny 5000 m2
- 2 banys
- Cuina Tipus Office
- Traster
Característiques generals
- Calefacció
- Piscina pròpia
- Aire Acondicionat
- Any construcció 1981
Galeria
Ubicació
Monte Real
