Favorito y comentario
Casa amb calefacció piscina a Valdoviño
Característiques principals
- 230 m2
- 3 hab.
- 3 banys
- 1.957 €/m2
Informació detallada
CHALET CON VISTAS AL MAR EN PANTÍNVALDOVIÑO
¡Descubre este magnífico chalet en Pantín, Valdoviño!
Ubicado en una de las zonas más hermosas de Pantín, este chalet de construcción moderna ofrece una combinación perfecta de confort y estilo. Con amplias habitaciones, una extensa zona ajardinada, merendero y una piscina, esta propiedad tiene un enorme potencial tanto para inversión, segunda residencia o como vivienda habitual.
Una de sus principales características es su terraza estratégicamente orientada al mar, que te permitirá disfrutar de vistas panorámicas y de atardeceres impresionantes.
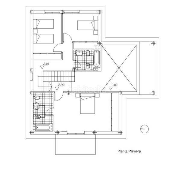
El salón, equipado con una acogedora chimenea y techos altos, crea un ambiente cálido y espacioso. Además, la cocina está totalmente equipada. En su primera planta dispone de 2 habitaciones con armarios empotrados y un amplio baño equipado con ducha de hidromasage. La tercera habitación dispone de terraza con vistas al mar y baño completo en suite.
Dispone además de gararaje, y en la misma planta un baño, zona lavandería y de calderas. La finca está totalmente cerrada y cuenta con un acceso peatonal y otro para los coches.
No dejes pasar esta oportunidad única de adquirir una propiedad excepcional, con acabados de primera calidad y un diseño abierto y moderno.
¡Contáctanos para más información y para programar una visita! [IW]
última modificació
Distribució
- 3 habitacions
- Superfície 230 m2
- Terreny 778 m2
- 3 banys
- Traster
Característiques generals
- Calefacció
- Piscina pròpia
- Moblat
- Any construcció 2008
Galeria
Ubicació
