Favorito y comentario
Casa a Centro Xirivella
Característiques principals
- 280 m2
- 5 hab.
- 1 bany
- 1.696 €/m2
Informació detallada
Gran oportunidad de inversión! Suelo edificable con construcción existente
Oportunidad para inversores, suelo edificable, con negocio de restauración actualmente cerrado por jubilación, vivienda a reformar y posibilidad de residencial hasta 5 alturas.
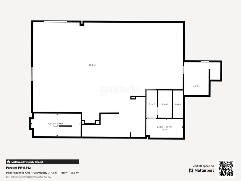
Se vende suelo edificable en Xirivella, con una superficie total de 280 m2. Actualmente, en la parcela se encuentra una construcción , que alberga un bar totalmente montado con licencia tanto de bar como de terraza, durante 40 años en funcionamiento situado en la planta baja.
En la planta superior nos encontramos con una construcción consolidada, totalmente para reformar, con 5 habitaciones, baño y cocina.
Se puede acceder al interior tanto por el local como por el exterior, independiente directamente a la planta primera.
Cuenta con una amplia terraza en la ultima planta.
Este inmueble ofrece múltiples posibilidades:
? Continuar con la actividad comercial y residencial.
? Reformar y adaptar a nuevas necesidades.
? Desarrollar un nuevo proyecto en un terreno con gran potencial.
Ubicado en una zona muy céntrica con buen acceso, tránsito, servicios cercanos, etc., ideal tanto para emprendedores como para potenciales inversores.
¡No dejes pasar esta oportunidad! Contáctanos para más información o para concertar una visita.
última modificació
Distribució
- 5 habitacions
- Superfície 280 m2
- 1 bany
Característiques generals
- Any construcció 1950
- A prop de transport públic
- Exempt
Galeria
Ubicació
Centro
