Comentari guardat!
Només ho veuràs tú
Comment saved!
Afegeix la teva valoració i/o un comentari per aquest anunci. Només el veuràs tu
1.250.000 € Avisa´m si baixa

Casa 255m2 amb calefacció aparcament a Canillo Canillo

  • des de 255 m2
  • 4 hab.
  • 3 banys
  • 4.902 €/m2
TERRA LLARGA
Pertany a la promoció

TERRA LLARGA

Esta promoción tiene 3 tipos de habitatges Veure promoció

Promoción de 8 casas adosadas en construcción en venta, situadas en el centro de la parroquia de Canillo.
Se encuentran en una de las zonas más prestigiosas, tranquilas y bonitas de la población, cerca de todos los servicios comunales, del Palacio de Hielo y del telecabina. Se trata de ocho casas con acabados de calidad, con unos diseños modernos y elegantes, rodeadas de naturaleza para los amantes de la montaña, con unas magníficas vistas panorámicas y sol durante todo el día.
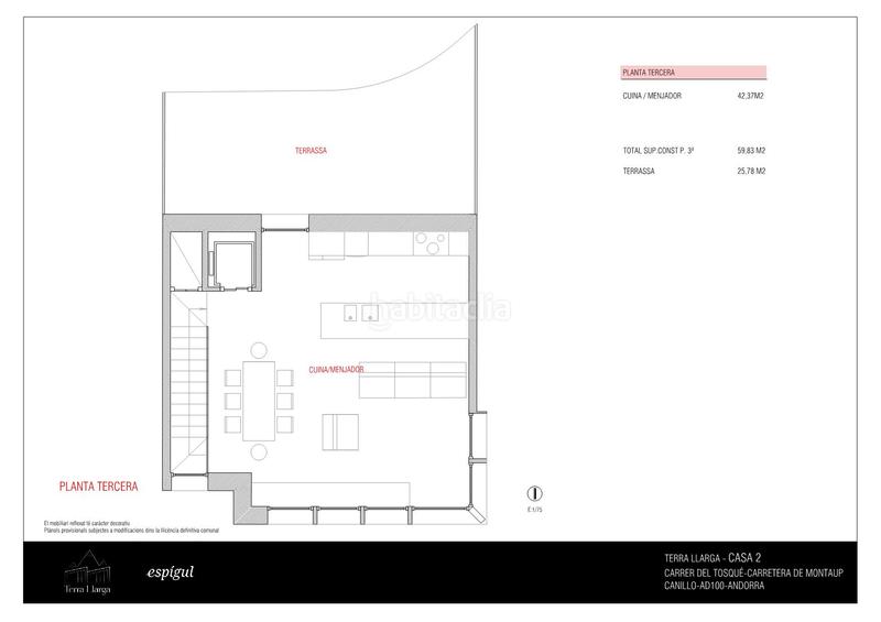
Planta baja con un gran parking para dos coches y una acogedora zona de vestíbulo. En la primera planta, dos amplios dormitorios dobles, un baño completo y un lavadero Segunda planta, magnífico dormitorio de tipo suite con baño completo, un dormitorio y un baño completo. Tercera planta, grande y luminoso salón-comedor con cocina abierta y con salida a la espectacular terraza. Los pavimentos son de gres imitación madera de roble. Las cocinas están equipadas con muebles acabados en laminados de color madera, azulejos y frentes de trabajos de mármol blanco reconfigurado, isla central y campana extractora de recirculación de filtro de carbón activo. Los baños están. En cuanto a la carpintería interior, las puertas interiores están acabadas en color madera. Los armarios empotrados con tiradores verticales refundidos en hojas, equipados con buques de cajones, barras de colgar y estantes según dimensiones, están acabados en color madera. Puertas corredizas ocultas en las paredes con sistema de cajones y guías. La calefacción por suelo radiante y el sistema de agua caliente, están alimentados mediante sistema de aerotermia.
Son unas propiedades idílicas para aquellos que buscan confort en una de las zonas más cotizadas del Principado de Andorra.
Forma de pago: · 25.000€ de reserva. · 25% + IGI (menos 25.000€ de reserva) Contrato de arras - junio 2024. · 25% + IGI Cubierta - junio 2025. · 50% + IGI Escritura pública - junio 2026.
Inicio de obra - junio 2024. · Finalización de obra - junio 202

última modificació

Distribució

  • 4 habitacions
  • Superfície 255 m2
  • 3 banys
  • Cuina Tipus Office: No

Característiques generals

  • Calefacció
  • Plaça aparcament
  • Sense aire acondicionat
  • Certificat energètic :
    Consumo:
    G
    999 kW h m2 / año
    Emisiones:
    G
    999 kg CO2 m2 / año
Anunci: 9706003069565

Ubicació

Canillo Carrer del Tosqué

Navega pel mapa fent clic a sobre
1.250.000 € Preu de l´anunci
5.819 €/m2€/m2 población
4.902 €/m2€/m2 de l´anunci
16% més econòmic que la mitja*
Veure evolució €/m2 a Canillo
T´avisem quan tinguem un anunci com aquest? Crea la teva alerta i nosaltres t´avisarem per correu electrònic quan hi hagin nous anuncis o siguin modificats
 

Pertany a la promoció TERRA LLARGA

Canillo - Carrer del Tosqué
Promoción TERRA LLARGA Canillo - Carrer del Tosqué des de 1.250.000 € Veure promoció
Altres tipus d´habitatge d´aquesta promoció

Contactar IMMOBILIÀRIA SUPERIOR

Referència de l´anunci habitaclia/13744:

Veuràs el telèfon després d´enviar el contacte a l´anunciant perquè et pugui atendre.
Veuràs el telèfon després de contactar
Enviant…