Favorito y comentario
Casa a Centro Inca
Característiques principals
- 191 m2
- 4 hab.
- 2 banys
- 2.068 €/m2
Informació detallada
Casa tipo tríplex a reformar en venta Inca.
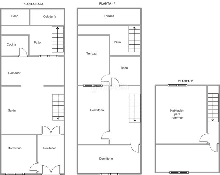
INMOCLAUS les presenta, en venta esta vivienda tipo tríplex a reformar, situada en la localidad de Inca, una zona tranquila y bien comunicada. La propiedad se distribuye en tres plantas y ofrece múltiples posibilidades de uso y personalización.
En la planta baja se encuentra un acogedor recibidor que da paso a una habitación doble, a continuación, se accede a un amplio salón comedor que comunica con una cocina independiente, funcional y bien distribuida. Desde esta área se accede al patio trasero, que cuenta con un baño exterior, una coladuría y una escalera que lleva a una terraza, ideal para disfrutar del aire libre o para crear un espacio chill-out.
La primera planta alberga tres habitaciones dobles y un baño completo. Desde este nivel también se puede acceder directamente a la terraza, lo que aporta una excelente conexión entre las estancias interiores y las zonas exteriores.
La segunda planta ofrece un espacio diáfano pendiente de reforma, con gran potencial para adaptarse a las necesidades del comprador. Puede convertirse en un estudio, una sala de juegos, un despacho o un dormitorio adicional.
Contáctenos para mas información y asesoramiento, queremos acompañarle durante todo el proceso.
última modificació
Distribució
- 4 habitacions
- Superfície 191 m2
- 2 banys
Característiques generals
- Any construcció 1950
- A prop de transport públic
Galeria
Ubicació
Centro DE LES COVES
