Comentari guardat!
Només ho veuràs tú
Comment saved!
Afegeix la teva valoració i/o un comentari per aquest anunci. Només el veuràs tu
323.000 € Avisa´m si baixa
ha baixat 30.000 €

Casa amb aparcament a El Sobradillo Santa Cruz de Tenerife

  • 433 m2
  • 5 hab.
  • 1 bany
  • 746 €/m2

Casa unifamiliar en el Sobradillo

Se vende casa unifamiliar independiente de tres plantas con excelentes condiciones, muy luminosa y fresca, todas las ventanas protegidas, y el sistema hidráulico y eléctrico en perfecto estado.
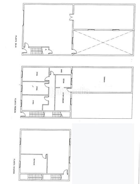
La planta baja de 196,19 m² se encuentra distribuida en dos locales siendo el de la entrada un garaje, un aseo, patio interior y escalera que da acceso a la primera planta que tiene 143,31 m², y está compuesta por salón-comedor, tres dormitorios, amplia cocina, baño y una gran terraza techada, la cual cuenta con una cocina auxiliar, excelente sitio para compartir. con amigos y familia.
La segunda planta de 91,19 m² cuenta con dos habitaciones que se utilizan como oficina y otra como despacho, y área de terraza, con posibilidades de construir una vivienda.

Esta propiedad es ideal tanto para vivir como para destinarla a alquiler e incluso, para ambas cosas, dada su dimensión y distribución.

Para más información, consulte con nosotros y agendemos una visita.

La información contenida en este anuncio es orientativa y puede estar sujeta a errores, cambios de precio, omisiones o retirada del mercado sin previo aviso. El precio indicado no incluye impuestos ni gastos. Las superficies, información urbanística y demás características descritas son aproximadas y pueden no corresponderse con la realidad. Se recomienda verificar toda la información antes de tomar decisiones. Los precios pueden variar sin previo aviso.

última modificació

Distribució

  • 5 habitacions
  • Superfície 433 m2
  • Terreny 196 m2
  • 1 bany

Característiques generals

  • Plaça aparcament
  • Any construcció 1965
  • A prop de transport públic
  • Certificat energètic :
    Consumo:
    G
    999 kW h m2 / año
    Emisiones:
    G
    999 kg CO2 m2 / año
Anunci: 39680000000210

Ubicació

El Sobradillo

Navega pel mapa fent clic a sobre
323.000 € Preu de l´anunci
1.584 €/m2€/m2 distrito
746 €/m2€/m2 de l´anunci
53% més econòmic que la mitja*
Veure evolució €/m2 a Santa Cruz de Tenerife (Suroeste)
T´avisem quan tinguem un anunci com aquest? Crea la teva alerta i nosaltres t´avisarem per correu electrònic quan hi hagin nous anuncis o siguin modificats
 

Contactar Vita Domus

Referència de l´anunci habitaclia/RD000401:

Veuràs el telèfon després d´enviar el contacte a l´anunciant perquè et pugui atendre.
Veuràs el telèfon després de contactar
Enviant…