Visita virtual
Comentari guardat!
Només ho veuràs tú
Comment saved!
Afegeix la teva valoració i/o un comentari per aquest anunci. Només el veuràs tu
550.000 € Avisa´m si baixa
ha baixat 100.000 €

Casa a avenida figueroa 7 a Casco Histórico Santiago de Compostela

Avenida Figueroa 7

  • 280 m2
  • 6 hab.
  • 3 banys
  • 1.964 €/m2

SE VENDE VIVIENDA EN PLENO CASCO HISTÓRICO, PORTA FAXEIRA.

SE VENDE VIVIENDA EN PLENO CASCO HISTÓRICO, PORTA FAXEIRA.

Esta espectacular vivienda del año 1900, situada en la emblemática Porta Faxeira, frente a la Alameda, ofrece una ubicación privilegiada en el corazón de la zona histórica.
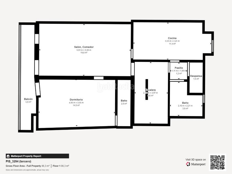
Con dos accesos independientes desde diferentes calles, esta propiedad de tres plantas, cada una de 88 metros cuadrados, más un bajocubierta de 25 metros, espera ser transformada a tu gusto. Aunque necesita una rehabilitación integral, su estructura de piedra ofrece un lienzo perfecto para crear la casa de tus sueños o desarrollar un negocio único.
Propiedad con división horizontal, con posibilidad de venta independiente.
Desde la última planta, podrás disfrutar de vistas hacia la majestuosa Catedral.

¡NO DEJES PASAR ESTA OPORTUNIDAD DE ADQUIRIR UNA PROPIEDAD CON HISTORIA Y POTENCIAL EN EL CORAZÓN DE SANTIAGO DE COMPOSTELA!

Tu nueva vida empieza con nosotros!

(url oculto)
#ref:CAS_2204

última modificació

Distribució

  • 6 habitacions
  • Superfície 280 m2
  • 3 banys

Característiques generals

  • Sense aire acondicionat
  • Certificat energètic :
    Consumo:
    G
    999 kW h m2 / año
    Emisiones:
    G
    999 kg CO2 m2 / año
Anunci: 31179000000729

Ubicació

Casco Histórico Avenida Figueroa 7

Navega pel mapa fent clic a sobre
550.000 € Preu de l´anunci
2.780 €/m2€/m2 población
1.964 €/m2€/m2 de l´anunci
29% més econòmic que la mitja*
Veure evolució €/m2 a Santiago de Compostela
T´avisem quan tinguem un anunci com aquest? Crea la teva alerta i nosaltres t´avisarem per correu electrònic quan hi hagin nous anuncis o siguin modificats
 

Contactar DECASA SANTIAGO INMOBILIARIA

Referència de l´anunci habitaclia/CAS_2204:

Veuràs el telèfon després d´enviar el contacte a l´anunciant perquè et pugui atendre.
Veuràs el telèfon després de contactar
Enviant…