Favorito y comentario
Casa a Guadalobón Estepona
Característiques principals
- 430 m2
- 4 hab.
- 4 banys
- 3.942 €/m2
Informació detallada
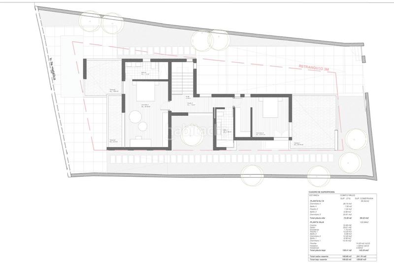
Esta fantástica y totalmente nueva villa ofrece el mejor confort. Con estilo y moderna, esta propiedad incluye 4 dormitorios espaciosos y 4 baños con suelo radiante.
El dormitorio principal, en la planta superior, cuenta con prácticos armarios empotrados con tocador. Está conectado al baño principal, que presenta un diseño de última generación y detalles de alta calidad. Esta habitación da acceso a un balcón amplio con vistas al mar. El segundo piso también incluye otro dormitorio con su propia terraza privada que da a la montaña y vistas urbanas. Un segundo baño se encuentra en este piso.
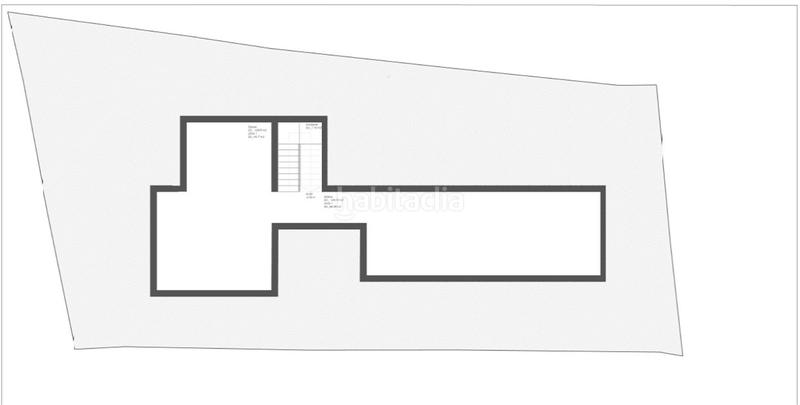
En la planta baja encontramos la sala de estar y la cocina totalmente equipada, diseñada con materiales de la mejor calidad y electrodomésticos Siemens. Hay otros dos dormitorios y baños en esta planta. La parcela tiene 610 m², lo que permite un maravilloso jardín con una piscina privada de aproximadamente 7 x 3 metros. Existe la opción de agua climatizada para la piscina. Finalmente, un gran sótano debajo permite la creación de un gimnasio privado, cine, trastero o incluso un dormitorio/cocina extra, ya que hay conexión de agua disponible en la planta baja.
La ubicación es excelente. Hay un puente que conecta la propiedad con la playa a 10 minutos a pie. Playa de Guadalobón es una playa amplia y maravillosa de arena. La villa está cerca de restaurantes y beach clubs. A 5 minutos en coche de Estepona y 20 minutos en coche de Marbella.
última modificació
Distribució
- 4 habitacions
- Superfície 430 m2
- Terreny 610 m2
- 4 banys
Característiques generals
- Any construcció 2025
Galeria
Ubicació
Guadalobón
