Comentari guardat!
Només ho veuràs tú
Comment saved!
Afegeix la teva valoració i/o un comentari per aquest anunci. Només el veuràs tu

Casa a Meco pueblo Meco

  • 192 m2
  • 3 hab.
  • 2.083 €/m2

Chalet pareado con piscina en ZONA ESCRITORES
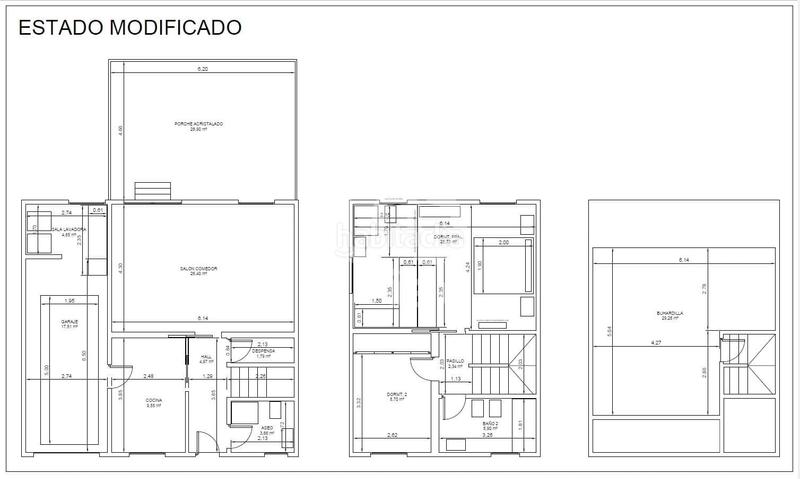
Te presento la oportunidad de vivir en un CHALET INDEPENDEINTE bañado de luz, con espacios que te invitan a compartir y disfrutar de tu hogar y reformada con mejoras de calidad que se compone de planta baja, primera y buhardilla.
Planta baja, porche de acceso de 10 m2, vivienda de 58m2, porche trasero de 32m2 y garaje y lavadero 28m2.
Planta primera de 58m2 con dos habitaciones, antes tres, y dos baños , uno en suite.
Buhardilla de 58m2 no registrables por altura libre. POSIBILIDAD DE AMPLIAR EDIFICABILIDAD Y OCUPACIÓN.
Toda la casa tiene tarima de madera maciza de alta calidad, calefacción eléctrica, aire acondicionado, doble ventana y mosquiteras. Los porches mantienen la temperatura y aíslan la casa de temperatura y de ruido.
Nos recibe un jardín con numerosas plantas y arboles que da acceso a un cómodo porche que hace de zaguán, un espacio estancial y de transición muy acogedor pintado con alegres colores. Así se consigue aislamiento térmico y acústico en la casa. A continuación tenemos la cocina a mano izquierda que comunica con el amplio garaje en planta, donde almacenar y con la zona de lavandería al fondo. A mano derecha tenemos un amplio y completo baño con una hermosa ventana, las escaleras y al fondo el salón comedor con los ambientes diferenciados, bomba de frio y de calor y una estufa de leña que harán que en tus noches de invierno puedas relajarte con el fuego. Volvemos a tener un espacio de transición y estancial que da mucho juego a la casa, un gran porche acristalado orientado al sur, un espacio versátil donde observar el jardín y la gran piscina. Varias casetas de almacenaje facilitan la vida y el aprovechamiento del espacio en la zona exterior.
Ya en la primera planta tenemos dos habitaciones con armarios empotrados y dos baños, uno en suite y con zona de vestidor para facilitar el día a día. Por ultimo tenemos la buhardilla, otro gran espacio de la casa que permite recibir invitados y organizar reuniones a parte de proporcionar mas espacio para que el orden reine en tu hogar.
Caldera eléctrica, bombas de frio y calor en el salón , habitaciones, buhardilla y porche grande, puerta automática de garaje y de parcela, suelo de madera en toda la casa salvo entrada, cocina y baños. Doble ventana y mosquiteras en toda la casa
Chalet pareado y muy bien orientado, en una de las zonas mas demandadas por su cercanía al centro del pueblo y al campo, si te gusta disfrutar del aire libre no dudes en consultarme.
Honorarios de venta incluidos en el precio y departamento financiero gratuito.

última modificació

Distribució

  • 3 habitacions
  • Superfície 192 m2
  • Terreny 344 m2

Característiques generals

  • Any construcció 1998
  • Certificat energètic :
    Consumo:
    G
    445 kW h m2 / año
    Emisiones:
    G
    117 kg CO2 m2 / año
Anunci: 15471000066974

Ubicació

Meco pueblo

Navega pel mapa fent clic a sobre
399.990 € Preu de l´anunci
1.961 €/m2€/m2 población
2.083 €/m2€/m2 de l´anunci
Quant t´agradaria pagar?
Veure evolució €/m2 a Meco
T´avisem quan tinguem un anunci com aquest? Crea la teva alerta i nosaltres t´avisarem per correu electrònic quan hi hagin nous anuncis o siguin modificats
 

Contactar IAD ESPAÑA

Referència de l´anunci habitaclia/151345:

Veuràs el telèfon després d´enviar el contacte a l´anunciant perquè et pugui atendre.
Veuràs el telèfon després de contactar
Enviant…