Comentari guardat!
Només ho veuràs tú
Comment saved!
Afegeix la teva valoració i/o un comentari per aquest anunci. Només el veuràs tu
225.000 € Avisa´m si baixa
ha baixat 15.000 €

Casa a polígono 34 paraje 467 verdugal 43 a Candeleda

Polígono 34 Paraje 467 VERDUGAL 43

  • 216 m2
  • 3 hab.
  • 2 banys
  • 1.042 €/m2

CASA EN FINCA PARQUE REGIONAL DE GREDOS

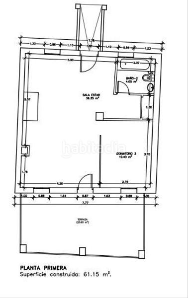
Situada en el idílico entorno de Los Verdugales, esta magnífica propiedad te ofrece la oportunidad de vivir rodeado del impresionante Parque Regional de Gredos. La finca se extiende sobre aproximadamente 2800 metros cuadrados y cuenta con un abastecimiento ininterrumpido de agua proveniente del manantial local, así como conexión a la red eléctrica para mayor comodidad. Con una superficie construida total de 165 m² distribuidos en dos plantas, encontrarás en la primera planta dos acogedores dormitorios y un salón cálido que invita al descanso gracias a su chimenea; además, dispone de una cocina funcional acompañada por un baño completo e incluye también un horno tradicional donde podrás cocinar tu propio pan. En la segunda planta disfrutarás de un amplio espacio diáfano ideal para personalizarlo según tus necesidades, otro dormitorio adicional junto con su propio baño privado. Desde el generoso porche exterior tendrás acceso a vistas impresionantes hacia El Almanzor y los valles circundantes; las panorámicas son espectaculares desde el pantano Rosarito hasta los lejanos Montes de Toledo. Esta es sin duda una oportunidad excepcional para adquirir tu hogar soñado entre paisajes naturales vírgenes e impactantes vistas montañosas; toda esta belleza está disponible ahora por tan solo 240000€. Para más información o concertar visitas llama a NATI al

última modificació

Distribució

  • 3 habitacions
  • Superfície 216 m2
  • Terrassa 44 m2
  • Terreny 2800 m2
  • 2 banys

Característiques generals

  • Any construcció 1996
  • Certificat energètic :
    Consumo:
    D
    166 kW h m2 / año
    Emisiones:
    D
    37 kg CO2 m2 / año
Anunci: 56303000000002

Ubicació

Polígono 34 Paraje 467 VERDUGAL 43

Navega pel mapa fent clic a sobre
225.000 € Preu de l´anunci
766 €/m2€/m2 comarca
1.042 €/m2€/m2 de l´anunci
Veure evolució €/m2 a Candeleda
T´avisem quan tinguem un anunci com aquest? Crea la teva alerta i nosaltres t´avisarem per correu electrònic quan hi hagin nous anuncis o siguin modificats
 

Contactar Infinity Consultores Inmobiliarios

Referència de l´anunci habitaclia/RUSTCANDGREDOS:

Veuràs el telèfon després d´enviar el contacte a l´anunciant perquè et pugui atendre.
Veuràs el telèfon després de contactar
Enviant…