Visita virtual
Comentari guardat!
Només ho veuràs tú
Comment saved!
Afegeix la teva valoració i/o un comentari per aquest anunci. Només el veuràs tu

Casa adossada amb aparcament a Alqueries (Les) / Alquerías del Niño Perdido

Calle Periodista Manolo Moles

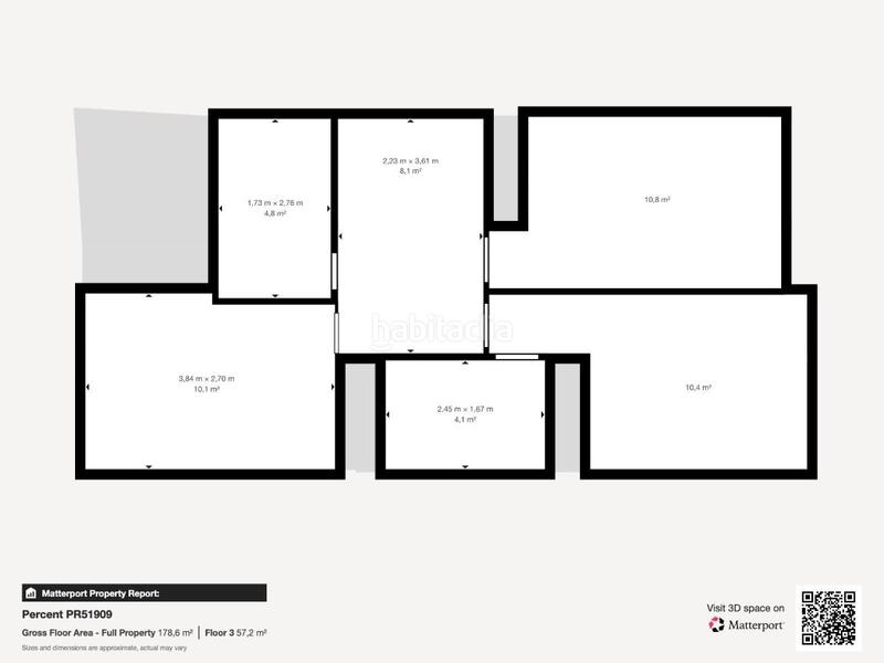
  • 191 m2
  • 3 hab.
  • 3 banys
  • 1.309 €/m2

PRECIOSO ADOSADO EN LES ALQUERIES

Rodeado de todos los servicios al alcance , comercios , transporte público , tren y autobús , ubicado en el municipio de Les Alqueríes , a tan solo 10 minutos a la playa y muy cerca de la Sierra de Espadán ,este precioso adosado de construcción de 2008, de 191m construidos , esta listo para poder disfrutarlo , reuniendo todas las comodidades y grandes calidades necesarias , distribuido de la siguiente forma .

Accedemos al inmueble por puerta principal , con acceso directo al gran garaje , con trastero de gran capacidad , zona de paellero techado y un baño completo provisto de ducha con mampara.

Por unas bonitas escaleras, las cuales se han aprovechado el hueco para obtener un plus de almacenaje creando un armario funcional .

Accedemos a la planta principal , recibiéndonos un gran salón comedor , muy luminoso provisto de balcón , frente a este se encuentra la cocina con espacio para mesa y sillas , con zona de despensa proporcionando mas espacio de almacenaje .

Esta planta esta provista de un aseo de cortesía , con armario utilizando al máximo su espacio.

Diferenciadas la zona de día y noche , en la planta superior se encuentran los tres dormitorios dobles , uno de ellos con baño en suitte , y todos con armarios empotrados , a continuación accedemos a la ultima altura , donde se ubican dos terrazas una de ellas también con barbacoa , perfectas dadas su orientación para disfrutar de vista despejadas , y zona de descanso y relax o zona de comedor al aire libre .En esta planta esta la zona de colada , con pila , espacio de almacenaje cómodo y funcional .

A destacar de la vivienda : Adosado seminuevo , suelos cerámicos , cerramientos con puente térmico , oscilobatientes , mosquiteras , puerta de paso de haya , cocina amplia , gas ciudad , caldera Vaillant , radiadores , aire acondicionado por conductos , gran garaje con puerta motorizada , trastero , paredes lisas ,dos barbacoas , terrazas , impecable estado de conservación.

No pierda esta gran oportunidad de vivir en un entorno tranquilo , a la vez bien comunicado , en un inmueble listo para entrar a vivir con grandes prestaciones .

En el precio del anuncio , nos esta incluido el mobiliario que aparece en las fotografías , los honorarios de la agencia , ni los gastos de compraventa , para mas información , no dude en contactar con nosotros .
#ref:10103-3524

última modificació

Distribució

  • 3 habitacions
  • Superfície 191 m2
  • 3 banys
  • Traster

Característiques generals

  • Plaça aparcament
  • Sense aire acondicionat
  • A prop de transport públic
  • Certificat energètic :
    Consumo:
    G
    999 kW h m2 / año
    Emisiones:
    G
    999 kg CO2 m2 / año
Anunci: 10532002349619

Ubicació

Calle Periodista Manolo Moles

Navega pel mapa fent clic a sobre
249.990 € Preu de l´anunci
1.266 €/m2€/m2 comarca
1.309 €/m2€/m2 de l´anunci
Quant t´agradaria pagar?
Veure evolució €/m2 a Alqueries (Les) / Alquerías del Niño Perdido
T´avisem quan tinguem un anunci com aquest? Crea la teva alerta i nosaltres t´avisarem per correu electrònic quan hi hagin nous anuncis o siguin modificats
 

Contactar PERCENT SERVICIOS

Referència de l´anunci habitaclia/10103-3524:

Veuràs el telèfon després d´enviar el contacte a l´anunciant perquè et pugui atendre.
Veuràs el telèfon després de contactar
Enviant…