Comentari guardat!
Només ho veuràs tú
Comment saved!
Afegeix la teva valoració i/o un comentari per aquest anunci. Només el veuràs tu

Casa adossada a calle del campo 13 a Blancos (Os)

Calle del Campo 13

  • 128 m2
  • 3 hab.
  • 1 bany
  • 250 €/m2

Tu nuevo hogar en Os Blancos te espera!

Si anhelas una vivienda con encanto, ideal para reformar a tu estilo y situada en un entorno natural excepcional, ¡esta es la oportunidad que estabas esperando!

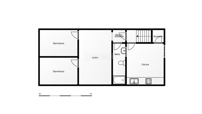
Esta propiedad cuenta con 128 m² distribuidos eficientemente en tres plantas interconectadas por una escalera interior. En la planta baja encontrarás un amplio garaje privado que ofrece comodidad y espacio de almacenamiento. La primera planta alberga un luminoso salón-comedor perfecto para disfrutar momentos inolvidables junto a tus seres queridos; además, incluye una cocina independiente amueblada lista para ser personalizada según tus necesidades, dos acogedores dormitorios y un baño completo equipado con bañera. Finalmente, la última planta presenta un gran dormitorio lleno de posibilidades donde podrás crear el refugio personal soñado.

Con calefacción instalada garantizando confort durante todo el año y ubicada privilegiadamente en Os Blancos (Ourense), esta casa se encuentra rodeada de naturaleza exuberante ofreciendo paisajes verdes idóneos para desconectar del bullicio diario.

A menos de 100 metros tendrás acceso al transporte público así como servicios esenciales como centro médico o áreas recreativas cercanas; todo lo necesario al alcance de tu mano sin renunciar a tranquilidad absoluta.

¡Contáctanos ahora para más información y para programar una visita!

Para más información: Vicente - **vdibuja @ikesa .es

Ikesa tiene sus oficinas en: Velázquez Moreno, 17 1º VIGO.

Visita sin compromiso. 0% Comisión a compradores para este activo.

IKESA Real Estate informa que no cobra comisión de ningún tipo por inmuebles procedentes de Entidades Financieras y Fondos de Inversión, así como producto de Obra Nueva.

El precio no tiene incluido aquellos gastos que por Ley le pudiera corresponder a la parte adquirente, tales como ITP, IVA, Notaría y Registro.

IKESA es una agencia homologada de diferentes Entidades Financieras, disponemos de una amplia cartera de Activos Inmobiliarios, consúltenos sin compromiso.

última modificació

Distribució

  • 3 habitacions
  • Superfície 128 m2
  • 1 bany

Característiques generals

  • Calefacció
  • Plaça aparcament
  • A prop de transport públic
  • Certificat energètic :
    Consumo:
    G
    999 kW h m2 / año
    Emisiones:
    G
    999 kg CO2 m2 / año
Anunci: 24308000046500

Ubicació

Calle del Campo 13

Navega pel mapa fent clic a sobre
32.000 € Preu de l´anunci
1.231 €/m2€/m2 provincia
250 €/m2€/m2 de l´anunci
80% més econòmic que la mitja*
Veure evolució €/m2 a Blancos (Os)
T´avisem quan tinguem un anunci com aquest? Crea la teva alerta i nosaltres t´avisarem per correu electrònic quan hi hagin nous anuncis o siguin modificats
 

Contactar IKESA.

Referència de l´anunci habitaclia/MERE-0000526:

Veuràs el telèfon després d´enviar el contacte a l´anunciant perquè et pugui atendre.
Veuràs el telèfon després de contactar
Enviant…