Favorito y comentario
Casa adossada amb calefacció aparcament a Montesol - Mejostilla Cáceres
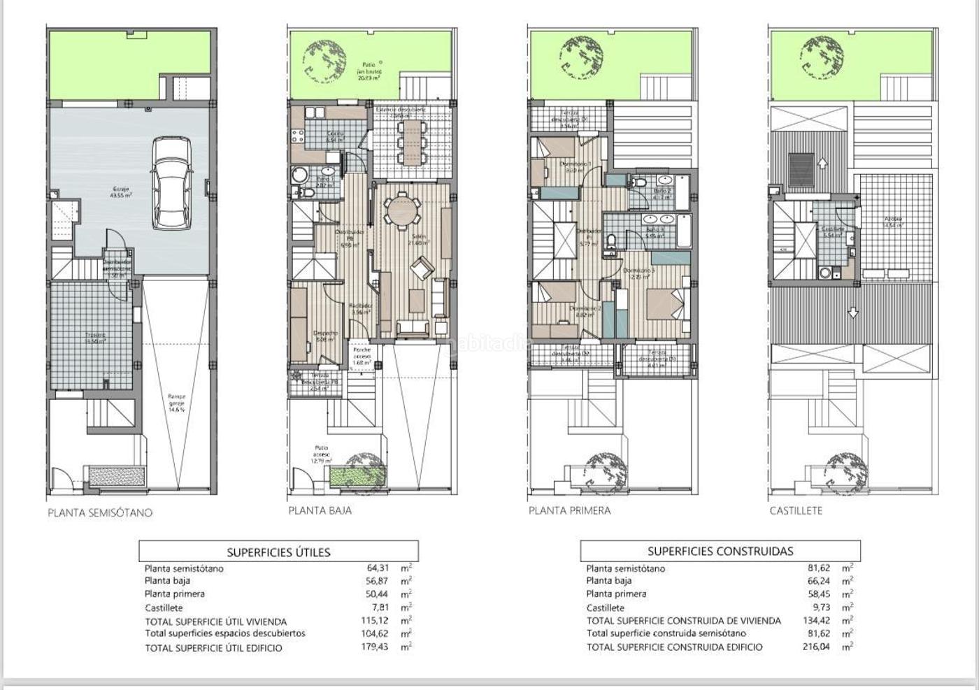
Característiques principals
- 216 m2
- 3 hab.
- 3 banys
- 1.384 €/m2
Informació detallada
Unifamiliar de obra nueva
En inmobiliaria Fernández os traemos esta magnifica vivienda unifamiliar a estrenar. Con todo tipo de lujos...
Cubierta De teja cerámica.
Fachada Realizada con revestimiento en monocapa.
Puertas de madera de roble o lacadas en blanca.
Calefacción con caldera para calefacción y agua
caliente sanitaria, alimentada con gas natural.
Preinstalación de aire acondicionado.
Aparatos sanitarios de porcelana vitrificada color blanco.
Grifería monomando.
Revestimientos Pintura plástica lisa mate color blanco.
Carpintería exterior Ventanas monobloc de aluminio con rotura de puente
térmico, con lamas de persianas de aluminio.
Puerta de entrada blindada.
Preinstalación de automatismo puerta acceso vehículos.
Iva y gastos de compraventa no incluidos en este precio.
última modificació
Distribució
- 3 habitacions
- Superfície 216 m2
- Terrassa 16 m2
- 3 banys
- Traster
Característiques generals
- Calefacció
- Plaça aparcament
- Any construcció 2024
- A prop de transport públic
Galeria
Ubicació
Montesol - Mejostilla