Comentari guardat!
Només ho veuràs tú
Comment saved!
Afegeix la teva valoració i/o un comentari per aquest anunci. Només el veuràs tu
Oportunitat 1.050.000 € Avisa´m si baixa

Casa adossada amb xemeneia calefacció aparcament piscina a Gavà

  • 277 m2
  • 3 hab.
  • 4 banys
  • 3.791 €/m2

Casa adosada en Gava Mar

En Finques Mompou, S. L. , nos complace poder ofrecerte esta equilibrada casa en la mejor zona de Gava, la zona residencial de Gava-Mar. A tan sólo 200 mts. de la playa, una zona tranquila y a su vez rodeada de todos los servicios y comodidades. Colegios internacionales como el Lycée International "Bon Soleil" y el British School Barcelona. Centros deportivos como el Club de Tenis A. Gimeno y el David Lloyd Gava Mar. A tan sólo 10 minutos de la T1 del Aeropuerto del Prat y a 20 minuto de Barcelona.
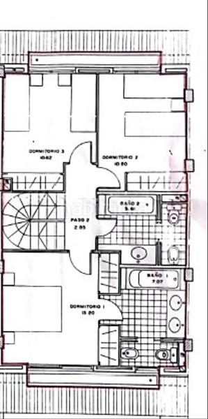
Se trata de una casa pareada en segunda línea de mar con orientación SUR y NORTE, consta de un total de cuatro plantas distribuidas de la siguiente manera:
PLANTA INFERIOR: Garage con capacidad para dos coches, zona lavadero, trastero y otra estancia equipada con sauna.
PLANTA PRINCIPAL: Accedemos desde la calle a través de la puerta del vallado y encontramos un parterre y un pequeño tramo de escaleres que da paso a la entrada principal de la vivienda. Recibidor, cocina office muy luminosa, 1 aseo y el salón-comedor con salida al jardin privado de unos 36 m2. Desde el jardin privado accedemos a la zona comunitaria con piscina.
PRIMERA PLANTA: En esta planta disponemos de 2 habitaciones dobles con baño en suite.
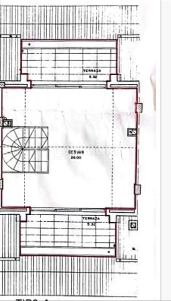
SEGUNDA PLANTA: En esta planta disponemos de una gran habitación con salida a 2 terrazas y 1 baño. Existe la posibilidad de convertirla en 2 habitaciones individuales y cada una con su propia terraza
EQUIPAMIENTOS Y ACABADOS: Suelos de parket en toda la vivienda. Armarios empotrados. Cerramientos carpinteria exterior de aluminio/Climalit y carpinteria interior de madera lacada en blanco. Aire acondicionado por conducto, sistema de calefacción y agua caliente mediante caldera de gas y radiadores.

No dejes pasar esta oportunidad! .
LLAMANOS al (Jordi, comercial asignado) y te ayudaremos en todo el proceso de visitas, consultas y gestión de compra. Tenemos profesionales que te orientarán a nivel financiero para encontrar la mejor solución para tu hipoteca.
En el precio NO estan incluidos impuestos (ITP) ni gastos notaria y gastos de registro.

última modificació

Distribució

  • 3 habitacions
  • Superfície 277 m2
  • Terrassa 30 m2
  • 4 banys
  • Cuina Tipus Office
  • Traster

Característiques generals

  • Calefacció
  • Xemeneia
  • Plaça aparcament
  • Aire Acondicionat
  • Any construcció 1993
  • A prop de transport públic
  • Certificat energètic :
    Consumo:
    D
    125 kW h m2 / año
    Emisiones:
    D
    24 kg CO2 m2 / año

Equipament comunitari

  • Piscina Comunitària
Anunci: 49518000000023

Ubicació

Gava Mar Carrer de Cubelles

Navega pel mapa fent clic a sobre
1.050.000 € Preu de l´anunci
3.590 €/m2€/m2 población
3.791 €/m2€/m2 de l´anunci
Veure evolució €/m2 a Gavà
T´avisem quan tinguem un anunci com aquest? Crea la teva alerta i nosaltres t´avisarem per correu electrònic quan hi hagin nous anuncis o siguin modificats
 

Contactar FINQUES MOMPOU

Referència de l´anunci habitaclia/FM250028:

Veuràs el telèfon després d´enviar el contacte a l´anunciant perquè et pugui atendre.
Veuràs el telèfon després de contactar
Enviant…