Comentari guardat!
Només ho veuràs tú
Comment saved!
Afegeix la teva valoració i/o un comentari per aquest anunci. Només el veuràs tu

Casa adossada amb calefacció aparcament piscina a Guadalajara

  • 405 m2
  • 5 hab.
  • 4 banys
  • 1.605 €/m2

CHALET ADOSADO / PISCINA / CENADOR / 5 DORMITORIOS / 4 BAÑOS / PARA ENTRAR A VIVIR / CERCA DE TODOS LOS SERVICIOS

Se trata de una bonito y amplio chalet construido en 2008, de 405 m2, sobre una parcela de 318 m2, que cuenta con la siguiente distribución:

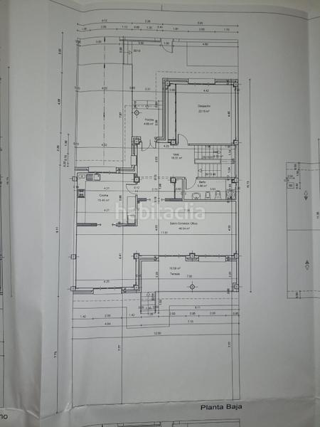
* PLANTA BAJA:

Amplio hall de entrada con armario gabanero
Gran salón comedor, con acceso directo a la cocina y a la parte exterior de la vivienda. Orientación Sur.
Cocina, con entrada desde el hall y desde la zona de comedor del salón. Dispone de isla, y encimera de mármol pulido
Baño con ducha
Gran dormitorio, con armario empotrado de alta capacidad.

Suelos de gres en esta planta

* EXTERIOR:

Porche de 16 m2, con toldos
Piscina con depuración por sal
Bonito cenador de madera, de 96 m2, ideal para disfrutar en familia.

* PLANTA 1ª:

Planta de descanso, formada por 3 dormitorios muy amplios, con grandes armarios
El dormitorio principal en suite con baño incorporado y vestidor.
Baño, con bañera y ventana, para dar servicio a los otros 2 dormitorios.

Suelos de madera en esta planta

* PLANTA SEMISÓTANO:

Gran espacio tipo loft de unos 100 m2
Aseo, con sitio suficiente para poner ducha en caso necesario
Zona de trastero / almacén / bricolaje
Garaje con puerta automática

* CALIDADES:

La vivienda se encuentra al día en todos los aspectos, para entrar a vivir.
Pintura lisa, ventanas de aluminio climalit doble cristal y oscilobatientes, calefacción por suelo radiante por gas natural, preinstalación de aire acondicionado, armarios vestidos interiormente, suelos de gres abajo y de madera en planta 1ª

* ZONA:

Zona residencial muy tranquila, con parada de bus en la puerta, supermercados, mercadona, ahorramás, etc.

última modificació

Distribució

  • 5 habitacions
  • Superfície 405 m2
  • Terrassa 16 m2
  • Terreny 318 m2
  • 4 banys
  • Cuina Tipus Office

Característiques generals

  • Calefacció
  • Piscina pròpia
  • Plaça aparcament
  • Aire Acondicionat
  • Any construcció 2008
  • A prop de transport públic
  • Certificat energètic :
    Consumo:
    G
    999 kW h m2 / año
    Emisiones:
    G
    999 kg CO2 m2 / año
Anunci: 15889000000351

Ubicació

Los Valles-Sanz Vazquez-El Fuerte Calle Timanfaya

Navega pel mapa fent clic a sobre
650.000 € Preu de l´anunci
2.220 €/m2€/m2 población
1.605 €/m2€/m2 de l´anunci
28% més econòmic que la mitja*
Quant t´agradaria pagar?
Veure evolució €/m2 a Guadalajara
T´avisem quan tinguem un anunci com aquest? Crea la teva alerta i nosaltres t´avisarem per correu electrònic quan hi hagin nous anuncis o siguin modificats
 

Contactar CENTRAL HOUSE

Referència de l´anunci habitaclia/TIMANFAYA:

Veuràs el telèfon després d´enviar el contacte a l´anunciant perquè et pugui atendre.
Veuràs el telèfon després de contactar
Enviant…