Favorito y comentario
Casa adossada amb piscina a Sagra
Característiques principals
- 93 m2
- 2 hab.
- 2 banys
- 1.989 €/m2
Informació detallada
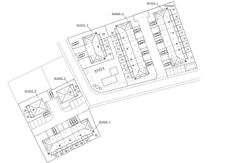
Casas adosadas de nueva construcción en Sagra. El complejo estará compuesto de 34 unidades con piscina y jardín comunitarios. Las viviendas constan de dos plantas. La planta baja se distribuye en salón comedor con cocina abierta, baño con ducha, terraza cubierta, jardín privativo y parking privado. Se accede a la planta alta mediante escalera abierta al salón. La planta alta se compone de distribuidor, 2 habitaciones, baño, trastero y terraza solarium con vistas.
Entre las calidades de construcción cabe destacar que incluye cocina totalmente equipada con electrodomésticos incluidos, carpintería exterior de aluminio con rotura térmica, baños con muebles y mamparas incluidas, agua sanitaria mediante sistema de aerotermia, azulejos y pavimentos de alta gama, barandillas de cristal opaco en los solariums. La zona comunitaria dispondrá de una magnífica piscina con zona ajardinada y terraza alrededor para tomar el sol. Toda la urbanización estará cerrada para uso exclusivo de los propietarios de las viviendas. La urbanización se encuentra en un entorno privilegiado totalmente rodeada de campos de naranjos, a tan sólo unos minutos andando de la población de Sagra, y con posibilidad de hacer rutas a pie o con bicicleta para disfrutar de un entorno totalmente natural. A tan sólo 20 minutos de Denia y sus playas, y a 15 minutos de Ondara, con acceso a autopista a Valencia y Alicante. [IW]
última modificació
Distribució
- 2 habitacions
- Superfície 93 m2
- 2 banys
Característiques generals
- Aire Acondicionat
Equipament comunitari
- Piscina Comunitària
Galeria
Ubicació
