Favorito y comentario
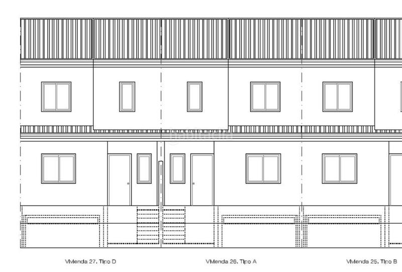
Casa adossada amb aparcament a Cijuela
Característiques principals
- 177 m2
- 4 hab.
- 2 banys
- 960 €/m2
Informació detallada
CASA ADOSADA NUEVA CONSTRUCCION 4 DORM
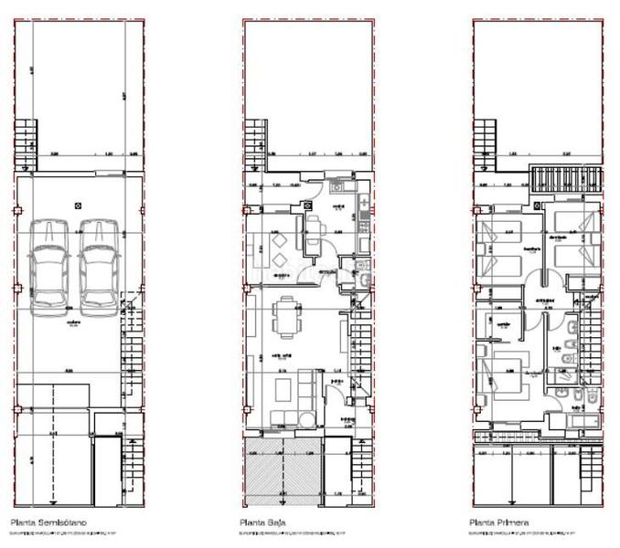
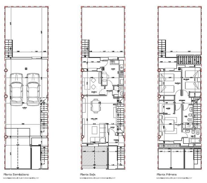
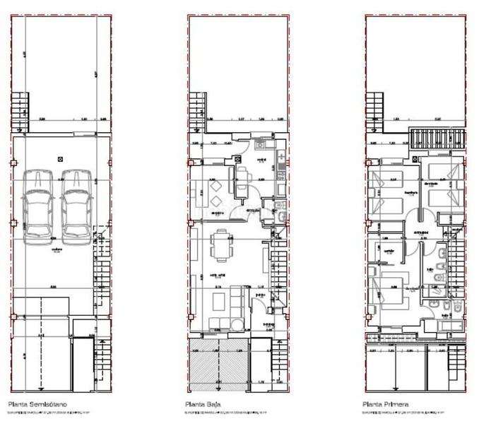
NUEVA PROMOCION DE VIVIENDAS ADOSADAS EN CIJUELA. VIVIENDAS ADOSADAS SOBRE UNA PARCELA DE 121m², CON SEMISOTANO, TENIENDO UNA CONSTRUCCION TOTAL EN METROS DE 177m² ENTRE LAS TRES PLANTAS.
EN PLANTA BAJA TENDREMOS ASEO, COCINA INDEPENDIENTE, SALON Y HABITACIO/DESPACHO. PLANTA ALTA CON TRES DORMITORIOS Y DOS BAÑOS, UNO DE ELLOS EN EL PRINCIPAL QUE ADEMAS CUENTA CON VESTIDOR. DISPONDRAN DE UN PATIO DE 37m², EL SEMISOTANO TENDRA 60m². SUELOS Y ALICATADOS DE GRES PORCELANICO, VENTANAS CON AISLAMIENTO ACUSTICO Y TERMICO.
EN LA ZONA CONTARAS CON GUARDERIAS, COLEGIOS, FARMACIA Y CENTRO DE SALUD, CENTROS DEPORTIVOS, SUPERMERCADOS Y OTROS COMERCIOS, ADEMAS DE 3 LINEAS DE AUTOBUSES CON GRANADA (QUE TE LLEVAN HASTA CONSTITUCION O ESTACION DE AUTOBUSES.
Precio anunciado mas impuestos (iva y ajd) y otros gastos de formalización. Sin honorarios de Inmobiliaria en Obra nueva. Le interesa esta casa y tiene alguna duda, consúltenos, Pregunte por Daniel.
última modificació
Distribució
- 4 habitacions
- Superfície 177 m2
- Terreny 121 m2
- 2 banys
Característiques generals
- Plaça aparcament
- A prop de transport públic
Galeria
Ubicació
Calle FELIX RODRIGUEZ DE LA FUENTE
