Favorito y comentario
Casa adossada a c. iris de carchuna 2 a Calahonda - Carchuna Motril
Característiques principals
- 218 m2
- 4 hab.
- 3 banys
- 1.009 €/m2
Informació detallada
Promoción de 16 viviendas en La Costa Tropical primera fase
Ponemos a la venta para ti esta primera fase de 4 viviendas en construcción, de las cuales 3 están aún disponibles.
Estas viviendas pertenecen a una promoción de 16 casas adosadas en el pueblo costero de Carchuna, en Motril (Granada).
Se están edificando sobre un solar de m², junto a todos los comercios, colegios y establecimientos de la población, y a escasos 10 minutos caminando de sus playas. Las viviendas adosadas son totalmente individuales, sin zonas comunes, y con parcelas desde 121 m².
Cada casa cuenta con un bonito porche delantero, un enorme garaje, 4 luminosas habitaciones (una en planta baja), 3 baños (uno de ellos en suite), un amplio salón comedor, cocina independiente y un bonito patio donde poder disfrutar del buen clima que siempre acompaña en la Costa Granadina.
Las viviendas disponibles son:
Casa € + IVA, con una parcela de 180,72 m² de forma rectangular y una superficie construida de 222,80 m², de los cuales 125,29 m² son útiles. El resto se destina a espacios descubiertos como: terraza, escaleras, rampa y jardín.
Casa € + IVA, con una parcela de 126 m² de forma rectangular y una superficie construida de 218,39 m², de los cuales 125,04 m² son útiles. El resto se destina a espacios descubiertos como: terraza, escaleras, rampa y jardín.
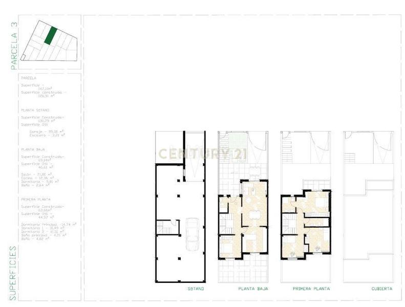
Casa € + IVA, con una parcela de 147,10 m² de forma rectangular y una superficie construida de 243,10 m², de los cuales 126,91 m² son útiles. El resto se destina a espacios descubiertos como: terraza, escaleras, rampa y jardín.
¡No dejes escapar esta fantástica oportunidad que te ofrecemos en primera mano y sobre plano, en la Costa Tropical de Granada! Ven a conocer tu nuevo hogar de la mano de profesionales y a precio de promotora (sin comisión de agencia).
El PVP indicado no incluye impuestos ni gastos de Escritura. Las superficies expresadas en esta publicación tienen carácter descriptivo y son aproximadas. Los precios pueden ser susceptibles de modificación sin previo aviso. Este inmueble se vende sin muebles.
última modificació
Distribució
- 4 habitacions
- Superfície 218 m2
- 3 banys
Característiques generals
- Any construcció 2024
Galeria
Ubicació
Calahonda - Carchuna C. Iris de Carchuna 2
