Comentari guardat!
Només ho veuràs tú
Comment saved!
Afegeix la teva valoració i/o un comentari per aquest anunci. Només el veuràs tu
355.000 € Avisa´m si baixa
ha baixat 14.000 €

Casa adossada a urbanización haza del algarrobo 27 a Mijas

Urbanización Haza del Algarrobo 27

  • 154 m2
  • 3 hab.
  • 2 banys
  • 2.305 €/m2

Espaciosa casa adosada familiar en una urbanización muy solicitada entre Mijas Pueblo y Fuengirola

Casa adosada orientada al sureste, ubicada en una popular urbanización cerrada entre el encantador y pintoresco pueblo blanco de Mijas y la vibrante localidad costera de Fuengirola. Disfruta de vistas a los cuidados jardines comunitarios en un entorno seguro y familiar.

Resumen

* 3 dormitorios en total (2 dobles y un amplio dormitorio principal con gran terraza privada en la planta superior)
* 2 baños (uno en suite)
* Comunidad cerrada y segura
* Ubicación junto a todos los servicios

Características interiores

* Recibidor con acceso a un amplio salón-comedor de planta abierta
* Chimenea funcional
* Patio privado y cerrado, ideal para disfrutar al aire libre
* Cocina moderna totalmente equipada con espacio para lavadora y amplio almacenamiento

Extras

* Aire acondicionado frío/calor en el salón y dormitorio principal
* Suelos de mármol con incrustaciones
* Persianas de seguridad
* Armarios empotrados en todos los dormitorios

Zonas comunes

* Gran piscina tipo laguna y piscina infantil
* Jardines comunitarios bien mantenidos
* Zona de juegos infantil cerrada
* Se vende sin amueblar
* Aparcamiento en la calle

Ubicada a poca distancia a pie de una nueva zona comercial con restaurantes y bien comunicada con el transporte público hacia Fuengirola y Mijas Pueblo.

Se recomienda visitarla.

última modificació

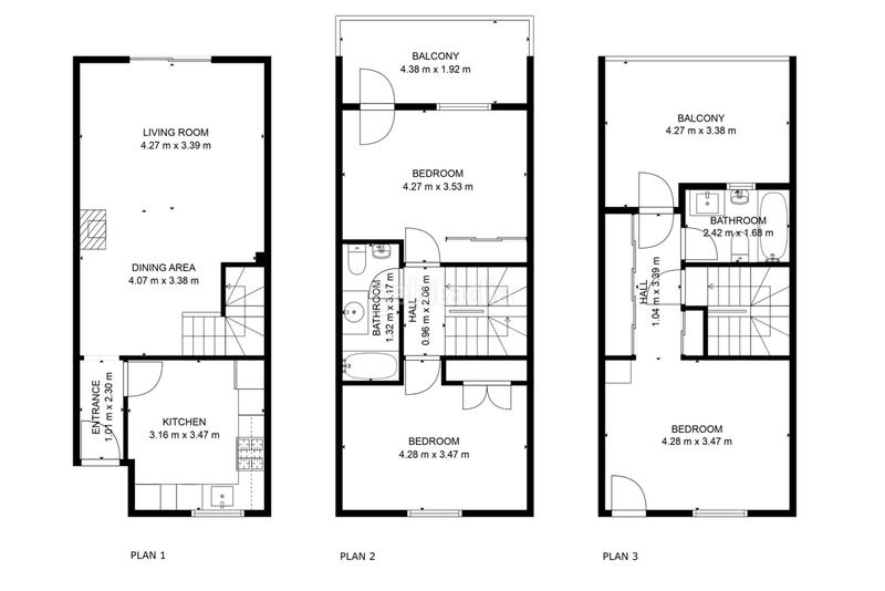
Distribució

  • 3 habitacions
  • Superfície 154 m2
  • Terreny 84 m2
  • 2 banys
  • Cuina Tipus Office

Característiques generals

  • Xemeneia
  • Sense plaça aparcament
  • Moblat
  • Aire Acondicionat
  • Any construcció 2001
  • Certificat energètic :
    Consumo:
    F
    999 kW h m2 / año
    Emisiones:
    F
    999 kg CO2 m2 / año

Equipament comunitari

  • Piscina Comunitària
Anunci: 24410000002419

Ubicació

Campo de Mijas Urbanización Haza del Algarrobo 27

Navega pel mapa fent clic a sobre
355.000 € Preu de l´anunci
3.333 €/m2€/m2 distrito
2.305 €/m2€/m2 de l´anunci
31% més econòmic que la mitja*
Veure evolució €/m2 a Mijas (Campo de Mijas)
T´avisem quan tinguem un anunci com aquest? Crea la teva alerta i nosaltres t´avisarem per correu electrònic quan hi hagin nous anuncis o siguin modificats
 

Contactar SoloCasa

Referència de l´anunci habitaclia/SOLOCASA5009524:

Veuràs el telèfon després d´enviar el contacte a l´anunciant perquè et pugui atendre.
Veuràs el telèfon després de contactar
Enviant…