Comentari guardat!
Només ho veuràs tú
Comment saved!
Afegeix la teva valoració i/o un comentari per aquest anunci. Només el veuràs tu

Casa adossada 150m2 a carrer de alfred sisley 30 a El Dorado Platja Cambrils

  • des de 150 m2
  • 4 hab.
  • 3 banys
  • 3.667 €/m2
Residencial Sisley Mar
Pertany a la promoció

Residencial Sisley Mar

Esta promoción tiene 15 tipos de habitatges Veure promoció

Residencial Sisley Mar – Villas de obra nueva a 2 min del mar

Viviendas unifamiliares en Cambrils, a solo 2 minutos andando de la playa. Ubicadas en una zona tranquila y consolidada, Residencial Sisley Mar ofrece casas de diseño moderno y eficiente, con 4 habitaciones, 3 baños, jardín y piscina privada sobre parcelas de aproximadamente 260 m².

Cada vivienda ha sido pensada para disfrutar de la luz del Mediterráneo y de un estilo de vida al aire libre. Incorporan sistemas de aerotermia y placas fotovoltaicas, lo que las convierte en una opción sostenible, eficiente y comprometida con el entorno.

Una promoción ideal para quienes buscan confort, proximidad al mar y calidad de vida en la Costa Dorada.

Le baron te acompaña durante todo el proceso.
Donde todo empieza.

última modificació

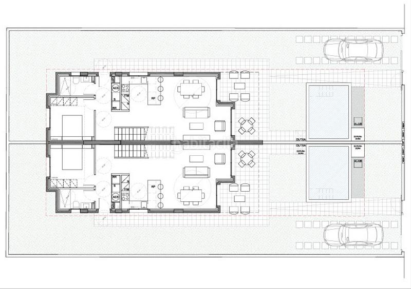
Distribució

  • 4 habitacions
  • Superfície 150 m2
  • Terrassa 11 m2
  • Terreny 260 m2
  • 3 banys
  • Cuina Tipus Office: No

Característiques generals

  • Calefacció
  • Piscina pròpia
  • Plaça aparcament
  • Aire Acondicionat
  • Certificat energètic :
    Consumo:
    A
    2 kW h m2 / año
    Emisiones:
    A
    12 kg CO2 m2 / año
Anunci: 55638000000002

Ubicació

El Dorado Platja Carrer de Alfred Sisley 30

Navega pel mapa fent clic a sobre
550.000 € Preu de l´anunci
2.936 €/m2€/m2 distrito
3.667 €/m2€/m2 de l´anunci
Veure evolució €/m2 a Cambrils (Ardiaca - La Llosa)
T´avisem quan tinguem un anunci com aquest? Crea la teva alerta i nosaltres t´avisarem per correu electrònic quan hi hagin nous anuncis o siguin modificats
 

Pertany a la promoció Residencial Sisley Mar

Cambrils - Carrer de Alfred Sisley, 30
Promoción Residencial Sisley Mar Cambrils - Carrer de Alfred Sisley, 30 des de 550.000 €
Entrega: Junio 2026
Veure promoció
Altres tipus d´habitatge d´aquesta promoció

Contactar le baron

Referència de l´anunci habitaclia/Residencial Sisley Mar:

Veuràs el telèfon després d´enviar el contacte a l´anunciant perquè et pugui atendre.
Veuràs el telèfon després de contactar
Enviant…