Comentari guardat!
Només ho veuràs tú
Comment saved!
Afegeix la teva valoració i/o un comentari per aquest anunci. Només el veuràs tu

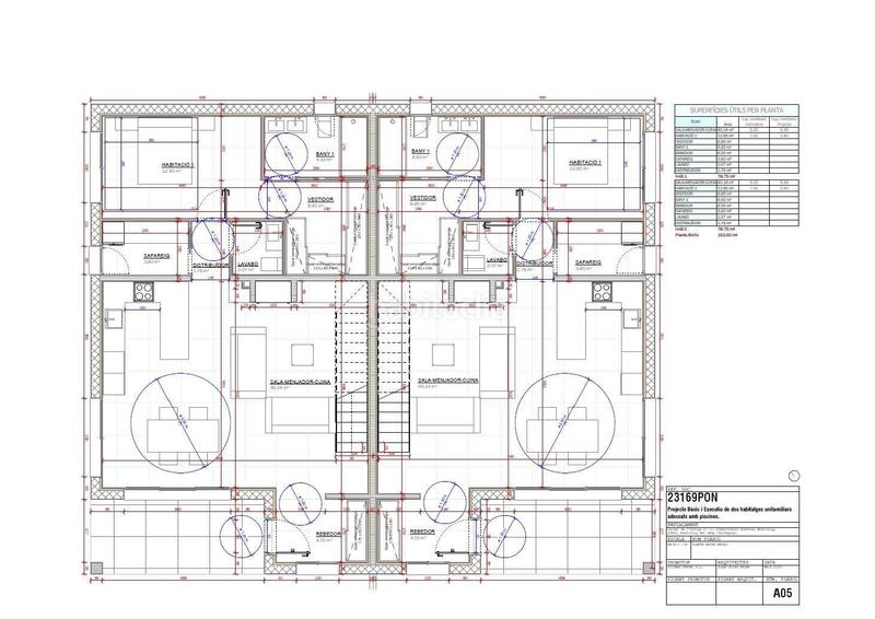
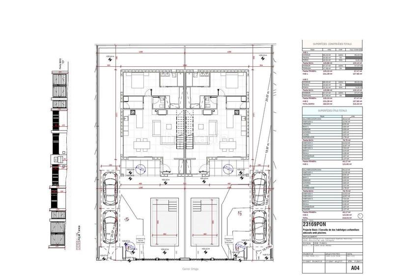
Casa aparellada amb aparcament piscina a Platja de Mont-roig Mont-roig del Camp

  • 157 m2
  • 4 hab.
  • 2 banys
  • 2.312 €/m2

Última unidad disponible en Rustical Montroig!

Casa pareada de obra nueva con piscina privada a solo 500 m del mar

Descubre esta exclusiva oportunidad en la Costa Dorada: una espectacular casa pareada de diseño contemporáneo, ubicada en la prestigiosa urbanización Rustical Mont-roig, en el término municipal de Mont-roig del Camp (Tarragona).

Forma parte de un proyecto de dos viviendas unifamiliares con piscina privada, promovido por Sicorax Forum S.L..
¡La otra unidad ya está vendida!
Inicio de obras: inminente | Entrega estimada: octubre de 2026

?? Características destacadas de la vivienda

4 dormitorios, uno de ellos en suite en planta baja

2 baños completos + 1 aseo de cortesía

Gran salón-comedor con cocina abierta

Vestidor, trastero, lavadero y porche cubierto

Piscina privada, jardín y terraza solárium

2 plazas de aparcamiento exteriores

Placas solares para autoconsumo

Alta eficiencia energética

Proyecto pensado para el confort, la funcionalidad y la sostenibilidad

Superficie construida: 243,84 m² | Parcela: 574 m²

?? Una ubicación inmejorable para disfrutar todo el año

Situada a tan solo 500 m de la playa, esta casa está rodeada de naturaleza y servicios, perfecta tanto como residencia habitual como segunda residencia de alto nivel:

????? Acceso a pie a la playa

?? A pocos minutos de puertos deportivos y calas

?? A solo 10 km de Cambrils y 20 min del aeropuerto de Reus

?? Cerca de Miami Playa, con supermercados, restaurantes y todo tipo de servicios

??? En el entorno de campings 5* como Playa Montroig Resort o La Torre del Sol

?? Ideal para amantes del deporte, con rutas de senderismo, bicicleta y naturaleza (Serra de Llaberia y Montsant)

?? Condiciones de compra

Vivienda 100 % hipotecable (no es autopromoción)

30 % de pago inicial a la firma del contrato privado

70 % restante al finalizar la obra y escriturar

?? ¡Una sola casa disponible! Vive a un paso del mar con todas las comodidades.

?? Contacta con VALCUE IMMOBILIÀRIA

última modificació

Distribució

  • 4 habitacions
  • Superfície 157 m2
  • Terreny 287 m2
  • 2 banys

Característiques generals

  • Piscina pròpia
  • Plaça aparcament
  • Certificat energètic :
    Consumo:
    G
    999 kW h m2 / año
    Emisiones:
    G
    999 kg CO2 m2 / año
Anunci: 30201000000316

Ubicació

Platja de Mont-roig Carrer Ortiga

Navega pel mapa fent clic a sobre
363.000 € Preu de l´anunci
1.962 €/m2€/m2 población
2.312 €/m2€/m2 de l´anunci
Veure evolució €/m2 a Mont-roig del Camp
T´avisem quan tinguem un anunci com aquest? Crea la teva alerta i nosaltres t´avisarem per correu electrònic quan hi hagin nous anuncis o siguin modificats
 

Contactar Vall & Cuerba

Referència de l´anunci habitaclia/VC02242:

Veuràs el telèfon després d´enviar el contacte a l´anunciant perquè et pugui atendre.
Veuràs el telèfon després de contactar
Enviant…