Comentari guardat!
Només ho veuràs tú
Comment saved!
Afegeix la teva valoració i/o un comentari per aquest anunci. Només el veuràs tu
1.190.000 € Avisa´m si baixa
ha baixat 150.000 €

Casa aparellada amb calefacció aparcament a Sóller

  • 166 m2
  • 2 hab.
  • 3 banys
  • 7.169 €/m2

Casa con jardín a estrenar en Sóller

Casa con jardín a estrenar en Sóller.

Situada en una de las calles más emblemáticas de Sóller, esta casa es totalmente nueva, para que la puedas estrenar.

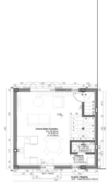
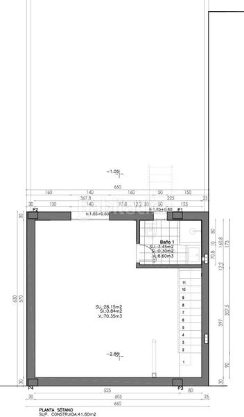
La casa de 166m² de superficie construida consta de:
En la planta sótano, una habitación polivalente donde se podría ubicar una sala de cine o un gimnasio, y un baño completo.
En la planta baja está el garaje con acceso directo al jardín de 84m².
En la primera planta se encuentran la cocina-salón-comedor, un aseo y la coladuría.
En la segunda planta hay dos dormitorios dobles cada uno con su propio baño en suite.

Características:

Domótica por toda la casa
Paneles solares
Climatización reversible frío/calor en todas las estancias
Bandas recargables para la recarga de vehículos eléctricos en el garaje
Ventanas de doble acristalamiento
Persianas de aluminio
Conducto de salida de humo a modo de pre-instalación de chimenea de pellet
Escalera de madera

última modificació

Distribució

  • 2 habitacions
  • Superfície 166 m2
  • Terreny 84 m2
  • 3 banys
  • Cuina Tipus Office: No

Característiques generals

  • Calefacció
  • Plaça aparcament
  • Aire Acondicionat
  • Any construcció 2024
  • A prop de transport públic
  • Certificat energètic :
    Consumo:
    C
    55 kW h m2 / año
    Emisiones:
    C
    17 kg CO2 m2 / año
Anunci: 34566000000205

Ubicació

Navega pel mapa fent clic a sobre
1.190.000 € Preu de l´anunci
7.484 €/m2€/m2 población
7.169 €/m2€/m2 de l´anunci
4% més econòmic que la mitja*
Veure evolució €/m2 a Sóller
T´avisem quan tinguem un anunci com aquest? Crea la teva alerta i nosaltres t´avisarem per correu electrònic quan hi hagin nous anuncis o siguin modificats
 

Contactar Esther Guesdon Inmobiliaria

Referència de l´anunci habitaclia/SL2280:

Veuràs el telèfon després d´enviar el contacte a l´anunciant perquè et pugui atendre.
Veuràs el telèfon després de contactar
Enviant…