Comentari guardat!
Només ho veuràs tú
Comment saved!
Afegeix la teva valoració i/o un comentari per aquest anunci. Només el veuràs tu

Local comercial a San Antón Armilla

  • 88 m2
  • 989 €/m2

CAMBIO DE USO a VIVIENDA? Local comercial con posibilidad.

Bonito local comercial en el centro de Armila.
Muy cerca del ayuntamiento y parada de metro.
Con posibilidad de hacer cambio de uso, gracias a los 8m. de fachada de que dispone.
Se podría construir una luminosa, amplia y cómoda vivienda con todos los servicios alrededor.
Actualmente su uso es de oficina y almacén. Por lo tanto, si lo que busca es un espacio para su negocio, aquí lo tiene ya totalmente adaptado.

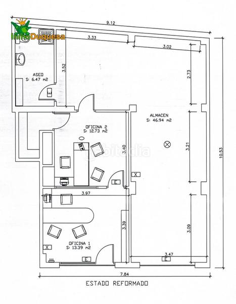
Actualmente el local está distribuido en:
- 2 amplias oficinas de 26 m².
- 1 amplio baño de 6,50 m² con taquillas.
- Y un gran almacén de 47 m².

¡Pida información sin compromiso!

El PVP indicado no incluye Gastos de Notaria, Registro de la propiedad ni Impuestos. Honorarios de agencia no incluidos. Las superficies expresadas en esta página son aproximadas y tienen carácter descriptivo.

última modificació

Distribució

  • Superfície 88 m2

Característiques generals

  • Moblat
  • Aire Acondicionat
  • Any construcció 1993
  • Certificat energètic :
    Exempt
Anunci: 42465000002683

Ubicació

San Antón

Navega pel mapa fent clic a sobre
T´avisem quan tinguem un anunci com aquest? Crea la teva alerta i nosaltres t´avisarem per correu electrònic quan hi hagin nous anuncis o siguin modificats
 

Contactar Inmobiliaria Inmoduquesa

Referència de l´anunci habitaclia/ID-Ip-25-11:

Veuràs el telèfon després d´enviar el contacte a l´anunciant perquè et pugui atendre.
Veuràs el telèfon després de contactar
Enviant…