Comentari guardat!
Només ho veuràs tú
Comment saved!
Afegeix la teva valoració i/o un comentari per aquest anunci. Només el veuràs tu

Local comercial a Gòtic Barcelona

  • 115 m2
  • 3.261 €/m2

Local en venta en cale Regomir, 3 Barrio Gótico Barcelona

Local + Entresuelo en venta ? Plaça del Regomir 3, Barrio Gòtic, BarcelonaPropiedad singular en venta en pleno corazón del Barrio Gòtic de Barcelona, en la emblemática Plaça del Regomir. Ubicación privilegiada, rodeada de comercios, galerías y puntos de interés histórico, con alto potencial para actividades profesionales o comerciales.
1-Características del inmueble
-Superficie construida total: 131 m² aprox.
-Planta baja (local): 45 m² aprox.
-Entresuelo/altillo: 76 m² aprox.
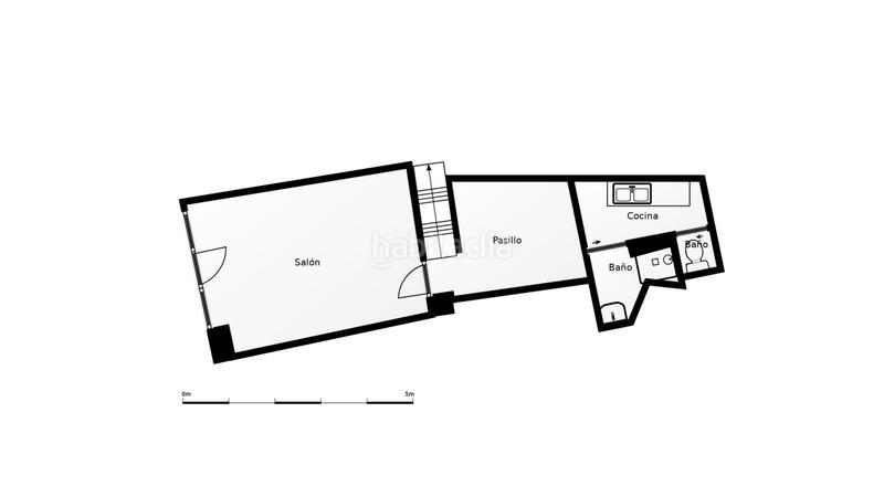
2-Distribución actual:
-Entresuelo: recibidor, cocina, salón, 1 habitación, baño completo con ducha y cuarto de calentador. Ventanas de ventilación; poca luz natural.
-Planta baja (local): área comercial amplia, 1 aseo + 1 baño, y pequeño office al fondo.
-Doble acceso: por finca (escaleras al entresuelo) y por la calle (desnivel 30?40 cm; requerirá rampa para plena accesibilidad).
-Comunicación interna: escalera de obra entre local y entresuelo, separada por división de vidrio de seguridad.
-Altura en entresuelo: < 2,50 m.
3-Entorno y comunicaciones
Entre Via Laietana y Plaça Sant Just, zona de gran encanto histórico, alto paso peatonal y comercio singular. Metro: Jaume I (L4) a pocos minutos. Bus: líneas con parada en Via Laietana (V15, V17, 47, 59, H14, D20). Tren: Estació de França a ~10 min a pie.
4-Usos potenciales
Planta baja: tienda de diseño, boutique vintage, galería/arte-regalo delicatessen, productos gourmet, concepto especializado.
Entresuelo: estudio profesional, despacho de autónomo, pequeño taller creativo o apoyo/logística del local.
Explotación flexible: alquiler conjunto o independiente (local y entresuelo por separado).
Condiciones legales y técnicas (muy importante)
No es posible obtener cédula de habitabilidad. La altura del entresuelo es inferior a 2,50 m y el trámite ya fue denegado.

La propiedad dispone de un reportaje fotográfico del entresuelo y un vídeo completo de planta baja y entresuelo para conocer en detalle la distribución actual.
Adicionalmente, hemos preparado renders del entresuelo a modo de propuesta de home-staging virtual, que muestran cómo podría quedar el espacio una vez reformado. Estos renders son únicamente una representación orientativa y no corresponden a imágenes reales.

Operación gestionada por propiedad institucional (fondo de inversión): se exigirá cumplimiento de normativa de prevención de blanqueo de capitales (KYC/AML) y documentación del comprador.
Inmueble para actualizar (reformas e implantación de rampa en acceso de calle).

Al precio de venta se le habrán de incrementar los correspondientes gastos de adquisición: ITP (10% tipo general) o IVA, además de gastos de Notaría, Registro y gestión.

última modificació

Distribució

  • Superfície 115 m2

Característiques generals

  • Any construcció 1850
  • Certificat energètic :
    Consumo:
    G
    295 kW h m2 / año
    Emisiones:
    D
    58 kg CO2 m2 / año
Anunci: 10803000001722

Ubicació

Gòtic Barcelona - Regomir

Navega pel mapa fent clic a sobre
T´avisem quan tinguem un anunci com aquest? Crea la teva alerta i nosaltres t´avisarem per correu electrònic quan hi hagin nous anuncis o siguin modificats
 

Contactar Vivendex Business & Properties

Referència de l´anunci habitaclia/LIRE00174_HIES1:

Veuràs el telèfon després d´enviar el contacte a l´anunciant perquè et pugui atendre.
Veuràs el telèfon després de contactar
Enviant…