Favorito y comentario
Local comercial a La Gavarra Cornellà de Llobregat
Característiques principals
- 193 m2
- 513 €/m2
Informació detallada
OPORTUNIDAD
¡ IDEAL PARA INVERSORES ! FOTOS NO REALES.
Te presento un local diáfano de 193 metros cuadrados, ubicado en el encantador barrio de La Gavarra, en Cornellà de Llobregat. Este espacio es ideal para una variedad de negocios, gracias a su amplitud y flexibilidad en la distribución.
Actualmente, el local está arrendado, generando una renta mensual de 700 euros, lo que representa una oportunidad interesante para inversores. Lo más destacado es que el negocio que ocupa este local tiene una trayectoria de más de 20 años, lo que habla de su solidez y aceptación en la comunidad.
La ubicación en La Gavarra es estratégica, ya que es un área con buen flujo de personas y una comunidad activa, lo que puede contribuir al éxito continuo del negocio. Si estás buscando un local con historia y potencial, este podría ser el lugar perfecto. Si necesitas más detalles o información adicional, ¡estaré encantado de ayudarte!
Impuestos, gastos y honorarios de la agencia, no incluidos en el precio (si procede).
última modificació
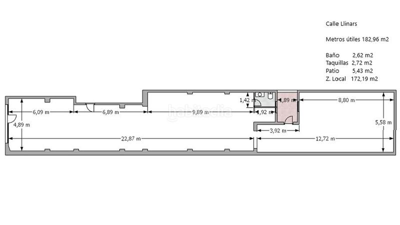
Distribució
- Superfície 193 m2
Característiques generals
- Any construcció 1971
Galeria
Ubicació
La Gavarra Carrer de Llinars
