Comentari guardat!
Només ho veuràs tú
Comment saved!
Afegeix la teva valoració i/o un comentari per aquest anunci. Només el veuràs tu

Local comercial a Ciudad Jardín Madrid

  • 150 m2
  • 5.267 €/m2

Oportunidad en Chamartín Viviendas a reformar con proyecto aprobado


Se venden dos viviendas en planta baja, con un total de 150 m² útiles, situadas a solo 3 minutos del Parque de Berlín y de la Plaza de Cataluña, en una calle tranquila junto a Príncipe de Vergara.
Estas propiedades se encuentran actualmente en proceso de transformación, con obra de segregación en ejecución y proyecto aprobado para cambio de uso de local a vivienda.
Una excelente oportunidad para invertir o crear tu hogar a medida en una de las zonas más demandadas de Chamartín – Ciudad Jardín.

Proyecto y documentación en regla.
El cambio de uso cuenta con toda la documentación oficial y técnica aprobada, lo que garantiza seguridad y transparencia en el proceso:
• Hoja de encargo formalizada
• Documento de viabilidad urbanística
• Proyecto entregado y validado por la ECU
Esto permite al comprador iniciar la reforma de inmediato, ahorrando tiempo y costes en gestiones administrativas.

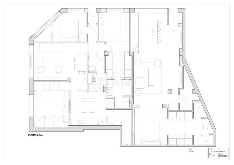
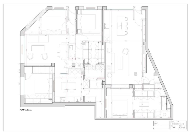
?? Distribución prevista
• Vivienda 1: 85 m² útiles
• Vivienda 2: 65 m² útiles

Ambas unidades ofrecen gran flexibilidad de diseño interior, ideales para adaptarlas según tus necesidades: vivienda familiar, alquiler, o inversión con alto potencial de revalorización.

?? Ventajas destacadas
• Proyecto de cambio de uso aprobado y en ejecución
• Posibilidad de personalizar la reforma
• Ubicación estratégica en Ciudad Jardín (Chamartín)
• Excelentes conexiones de metro, autobús y acceso directo a la M-30

Una oportunidad única de adquirir viviendas con proyecto aprobado y alto potencial de rentabilidad en pleno Chamartín.

última modificació

Distribució

  • Superfície 150 m2

Característiques generals

  • Any construcció 1955
  • Certificat energètic :
    Consumo:
    E
    57 kW h m2 / año
    Emisiones:
    F
    307 kg CO2 m2 / año
Anunci: 18235000005155

Ubicació

Ciudad Jardín Calle de Pérez Ayuso

Navega pel mapa fent clic a sobre
T´avisem quan tinguem un anunci com aquest? Crea la teva alerta i nosaltres t´avisarem per correu electrònic quan hi hagin nous anuncis o siguin modificats
 

Contactar REMAX JUMBO

Referència de l´anunci habitaclia/PR99559597 :

Veuràs el telèfon després d´enviar el contacte a l´anunciant perquè et pugui atendre.
Veuràs el telèfon després de contactar
Enviant…