Local reformado por completo como apartamento ideal para una persona o para una pareja a dos minutos a pie de la Glorieta de Embajadores.
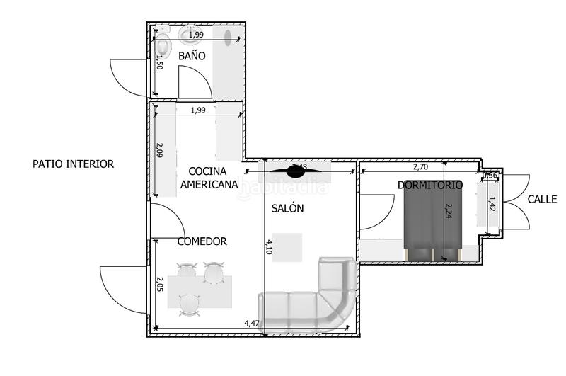
El inmueble está formado por un pequeño salón-comedor con cocina americana y baño independiente con plato de ducha amplio y termo eléctrico. La cocina se encuentra equipada con vitrocerámica, lavadora y frigorífico. El apartamento cuenta con dos ventanas al patio interno de la comunidad (salón y baño) y una ventana al exterior en el dormitorio. Finca con ascensor y portero físico.
Zona comercial, situada en magnífica ubicación, junto a la Glorieta de Embajadores, parada de metro Embajadores (L3) y Cercanías Renfe, con todos los servicios, hostelería, farmacias, colegios, hospitales, centros de salud, supermercados, parques, paradas de autobuses (34, 36, 78, 118, 119, C1, C2) y fácil acceso a las principales carreteras como M30 y A42.
*Si no atendemos su llamada puede dejarnos un . **Honorarios del 2% sobre el precio de venta por cuenta del comprador. ***Aunque está reformado como vivienda, en las escrituras y registro aparece como local.
última modificació
Text traduït per un sistema automàtic
Traducció no disponible
habitaclia.com no es responsabilitza dels errors que la informació mostrada en aquest mapa pugui contenir. L´usuari serà el responsable de l´ús que doni a aquesta informació.
T´avisem quan tinguem un anunci com aquest?Crea la teva alerta i nosaltres t´avisarem per correu electrònic quan hi hagin nous anuncis o siguin modificats
Veuràs el telèfon després d´enviar el formulari de Contactar amb l´anunciant
Introdueix el codi que apareix a la imatge superior.
Les meves notificacions
les meves cerques
Els meus favorits
Anuncis contactats
Alertes d´un anunci:
T´enviem per correu electrònic els últims canvis a l´immoble seleccionat
Alertes anuncis similars:
T´enviem per correu electrònic els últims immobles i promocions que s´hagin publicat a habitaclia i que concordin amb les preferències de la teva cerca
Afegir a favorits
Esborrar de favorits
L´Índex de referència de preus de lloguer és un indicador que publica l´Agència de l´Habitatge de Catalunya i que permet conèixer una estimació del preu mitjà del metre quadrat de lloguer d´una vivenda situada en una zona i amb unes determinades característiques. També orienta sobre el preu mínim i màxim que pot arribar a tenir aquesta vivenda.