Favorito y comentario
Local comercial amb calefacció a Ríos Rosas-Nuevos Ministerios Madrid
Característiques principals
- 165 m2
- 1 bany
- 4.364 €/m2
Informació detallada
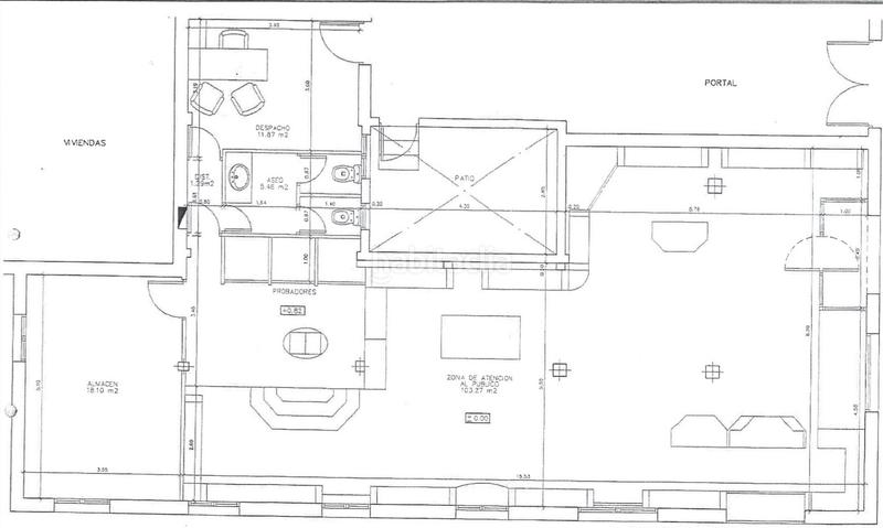
Una sola planta. Cada vez es más difícil encontrar un local que no tenga una gran superficie en sótano, y lo peor, valorado como si fuera escaparate. Espléndido local haciendo esquina para todo lo que imagines. Prácticamente diáfano, luz agradable para personal y clientes, altura de techos de 3,4 m en la mayor parte del espacio, con una gran superficie principal, un despacho o sala de reuniones, aseos, y almacén, todo ello en perfecto estado y con múltiples posibilidades si se quiere dividir con mamparas.
Actualmente hay un negocio que lleva como inquilino casi 5 años, vence su contrato en agosto de 2026. Si buscas una inversión, puedes proponer renovación y cobra desde el primer momento. Si es para tu propio negocio, en principio deberás esperar a la fecha de finalización de contrato para instalarte.
Preinstalación de aire acondicionado, cierre eléctrico, entrada también por el portal, calefacción central con consumo individualizado.
La superficie catastral construida con comunes es de 186 m2, construida de 165 m2, y útiles comprobados de 140 m2.
IBI de 170€ al año y tasa de basuras de 35€.
La zona es inmejorable, con una gran densidad de población en el entorno, en un barrio de alto poder adquisitivo, por su puerta tiene un importante paso de gente tanto residentes como trabajadores de las numerosas oficinas de los alrededores. Las comunicaciones son excelentes, numerosas líneas de autobús y a escasos minutos andando del intercambiador de Nuevos Ministerios, Metro y Cercanías a un paso.
Es una oportunidad para iniciar cualquier proyecto o como inversión, contacta conmigo y te doy más información.
última modificació
Distribució
- Superfície 165 m2
Característiques generals
- Calefacció
- Sense aire acondicionat
- Any construcció 1950
Galeria
Ubicació
Ríos Rosas-Nuevos Ministerios Calle de Alonso Cano