Comentari guardat!
Només ho veuràs tú
Comment saved!
Afegeix la teva valoració i/o un comentari per aquest anunci. Només el veuràs tu

Masia amb calefacció a Bunyola

  • 120 m2
  • 3 hab.
  • 2 banys
  • 3.333 €/m2

CASA RÚSTICA EN ORIENT

POSIBILIDAD DE LEGALIZACIÓN URBANÍTICA

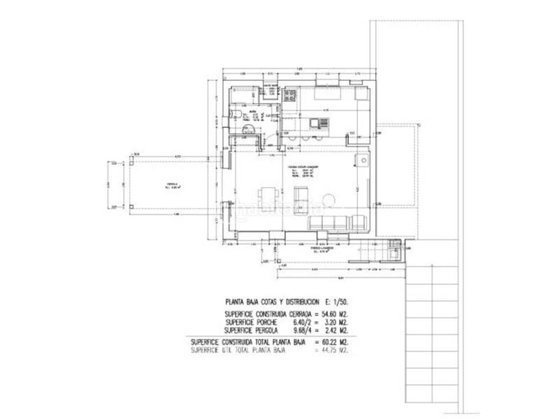
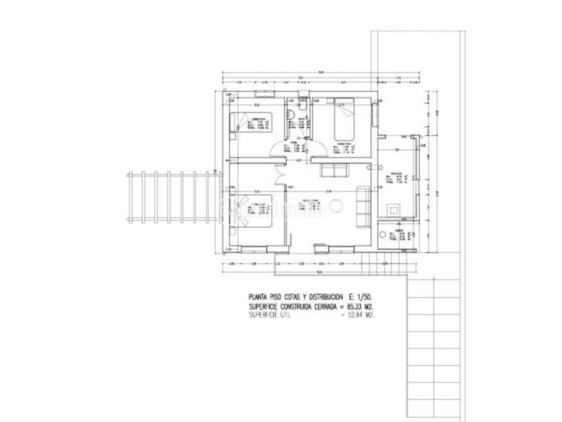
Se vende finca rústica con una extensión de 39.000 metros cuadrados y una vivienda de 110 metros cuadrados construidos, distribuidos en dos alturas. La propiedad está correctamente inscrita en el Registro de la Propiedad y ofrece la posibilidad de ser legalizada urbanísticamente, lo que la convierte en una oportunidad única tanto para uso residencial como recreativo.

En la planta baja se encuentra una cocina funcional, un amplio salón-comedor con chimenea y un baño completo. En la planta superior se dispone de un gran distribuidor que da acceso a tres habitaciones, una de ellas doble, además de un aseo. La vivienda cuenta con radiadores en todas las estancias, lo que garantiza el confort durante todo el año, así como con una chimenea que aporta calidez y carácter al hogar.

El suministro eléctrico se obtiene mediante placas solares, lo que proporciona autonomía y eficiencia energética, y el abastecimiento de agua proviene de dos aljibes, uno con capacidad para 30 toneladas y otro de 90 toneladas.

La finca, rodeada de naturaleza y con un entorno tranquilo, es ideal para quienes buscan disfrutar del campo, la privacidad y el contacto con la naturaleza sin renunciar a las comodidades de una vivienda bien equipada y con toda su documentación en regla.

última modificació

Distribució

  • 3 habitacions
  • Superfície 120 m2
  • Terreny 39515 m2
  • 2 banys

Característiques generals

  • Calefacció
  • Any construcció 1987
  • Certificat energètic :
    Consumo:
    E
    10 kW h m2 / año
    Emisiones:
    E
    100 kg CO2 m2 / año
Anunci: 27879000001215

Ubicació

Navega pel mapa fent clic a sobre
400.000 € Preu de l´anunci
6.984 €/m2€/m2 comarca
3.333 €/m2€/m2 de l´anunci
52% més econòmic que la mitja*
Veure evolució €/m2 a Bunyola
T´avisem quan tinguem un anunci com aquest? Crea la teva alerta i nosaltres t´avisarem per correu electrònic quan hi hagin nous anuncis o siguin modificats
 

Contactar GR IMMOBLES

Referència de l´anunci habitaclia/002785:

Veuràs el telèfon després d´enviar el contacte a l´anunciant perquè et pugui atendre.
Veuràs el telèfon després de contactar
Enviant…