Comentari guardat!
Només ho veuràs tú
Comment saved!
Afegeix la teva valoració i/o un comentari per aquest anunci. Només el veuràs tu

Masia amb aparcament piscina a Cap Martí - El Tossalet - Pinomar Xàbia

  • 152 m2
  • 3 hab.
  • 2 banys
  • 5.592 €/m2

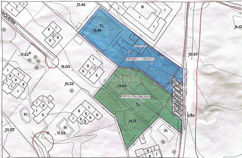
Parcela de 2.600 m2 con casa y posibilidad de división en dos parcelas edificables
Esta parcela se encuentra a muy poca distancia de la playa de arena de Jávea y ofrece una excelente oportunidad de inversión. La parcela se puede dividir perfectamente en dos parcelas edificables independientes de unos 1.300 m2 cada una, aptas para realizar dos villas de lujo.
Actualmente, la parcela contiene una villa de una sola planta con una superficie construida de 152 m². La propiedad cuenta con un salón con cocina abierta, un segundo salón-comedor con cocina cerrada, tres dormitorios, dos baños y un patio con trastero.
Esta parcela se encuentra a poca distancia de la playa de arena de Jávea y goza de una excelente ubicación cerca de todos los servicios. Supermercados, restaurantes, consultas médicas, instalaciones deportivas y otras necesidades diarias se encuentran a poca distancia. Esta ubicación combina la privacidad con la comodidad de una ubicación céntrica.

última modificació

Distribució

  • 3 habitacions
  • Superfície 152 m2
  • Terreny 2600 m2
  • 2 banys
  • Traster

Característiques generals

  • Piscina pròpia
  • Plaça aparcament
  • Sense aire acondicionat
  • Certificat energètic :
    Consumo:
    G
    999 kW h m2 / año
    Emisiones:
    G
    999 kg CO2 m2 / año
Anunci: 28548000002672

Ubicació

Cap Martí - El Tossalet - Pinomar

Navega pel mapa fent clic a sobre
850.000 € Preu de l´anunci
3.647 €/m2€/m2 población
5.592 €/m2€/m2 de l´anunci
Quant t´agradaria pagar?
Veure evolució €/m2 a Xàbia
T´avisem quan tinguem un anunci com aquest? Crea la teva alerta i nosaltres t´avisarem per correu electrònic quan hi hagin nous anuncis o siguin modificats
 

Contactar ARZUAGA INMOBILIAIRA

Referència de l´anunci habitaclia/AR55218:

Veuràs el telèfon després d´enviar el contacte a l´anunciant perquè et pugui atendre.
Veuràs el telèfon després de contactar
Enviant…