Visita virtual
Comentari guardat!
Només ho veuràs tú
Comment saved!
Afegeix la teva valoració i/o un comentari per aquest anunci. Només el veuràs tu
460.000 € Avisa´m si baixa
ha baixat 30.000 €

Nau industrial amb calefacció a Ogíjares

Polígono TECNOLOGICO

  • 590 m2
  • 780 €/m2

NAVE INDUSTRIAL CON USO PRINCIPAL DE RESTAURANTE CON POSIBILIDAD DE PAGO APLAZADO

Ponemos a la venta en exclusiva, esta nave industrial con posibilidad de compra con pago aplazado ( Descrita más abajo).
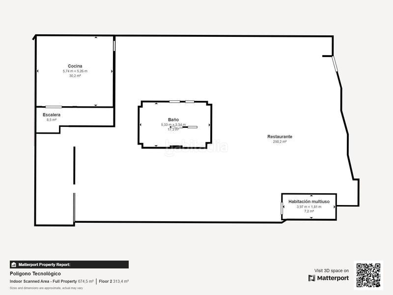
La nave cuenta con 590 m2 construidos y 358 m2 de parcela, con un total de tres plantas, que dispone además de techo transitable donde se encuentran las máquinas del aire acondicionado, el depósito de gas.
-Planta Principal: salón diáfano, la zona de la barra completamente equipada con neveras, botelleros....una gran cocina que cuenta con elevador de platos que se comunica con todas las plantas, zona de office, pequeño trastero ideal para almacenar la bebida y los aseos para clientes. Esta planta tiene un total de cinco aires industriales de frío/calor.

-Primera Planta: En ella tenemos una segunda cocina, un salón diáfano, dos habitaciones insonorizadas que se usaban como Karaoke, un cuarto de luces, un cuarto de baño, una terraza cubierta desde donde se accede a la salida de emergencia independiente, un despacho y el acceso al tejado. Esta planta cuenta con tres aires industriales de frío/calor.

-Sótano: Aquí encontramos tres cámaras frigoríficas, una gran zona de almacenaje, un despacho, dos trasteros y los baños para el personal con taquillas.
Se vende con el mobiliario y equipado tal cual se ve.

IMPORTANTE:
Posibilidad de adquirir este inmueble como compra con pago aplazado con plazo máximo de escritura en 2 años, entrega a cuenta del precio del 20% del precio de venta y una cuota mensual de 2.000€ que también será a cuenta del precio.
Ven a ver esta gran oportunidad de inversión!!

Se informa que el precio indicado no incluye los gastos derivados de la compra (ITP 7%, gastos notariales, registrales y tampoco incluye los honorarios de intermediación inmobiliaria

última modificació

Distribució

  • Superfície 590 m2

Característiques generals

  • Calefacció
  • Any construcció 1999
Anunci: 40934000001784

Ubicació

Polígono TECNOLOGICO

Navega pel mapa fent clic a sobre
T´avisem quan tinguem un anunci com aquest? Crea la teva alerta i nosaltres t´avisarem per correu electrònic quan hi hagin nous anuncis o siguin modificats
 

Contactar Inmocasa Granada

Referència de l´anunci habitaclia/PT-NAVEOGIJARES:

Veuràs el telèfon després d´enviar el contacte a l´anunciant perquè et pugui atendre.
Veuràs el telèfon després de contactar
Enviant…