Favorito y comentario
Només ho veuràs tú
91.000 €
Avisa´m si baixa
Oficina a Plantío - Alcampo Burgos
Característiques principals
- 116 m2
- 784 €/m2
Informació detallada
Oficina en venta en zona Alcampo
Esta espaciosa oficina en venta se encuentra en la zona de Alcampo- PLantío. Con una superficie total de 116 m², está en buen estado y es ideal para cualquier tipo de negocio como academia, asesoría o despacho con una ubicación exterior que le brinda luminosidad. La zona de Río Vena-G2-Plantío, situada junto a la margen norte del río Arlanzón, es una zona residencial consolidada que ofrece equipamientos educativos, sanitarios y comerciales para satisfacer todas las necesidades de sus habitantes. Destacan también los espacios deportivos y culturales cercanos como el estadio municipal el Plantío, y la Ciudad Deportiva Militar.
última modificació
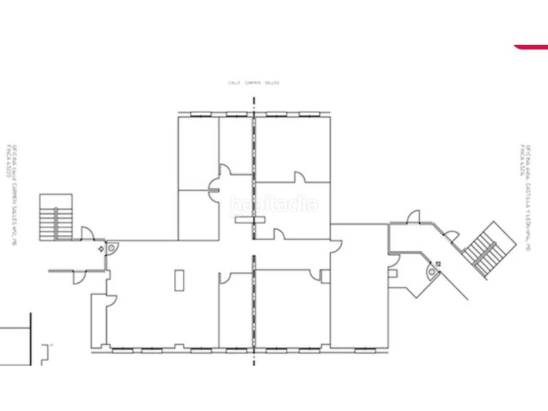
Distribució
- Superfície 116 m2
Característiques generals
Galeria
Ubicació
Plantío - Alcampo
Navega pel mapa fent clic a sobre

habitaclia.com no es responsabilitza dels errors que la informació mostrada en aquest mapa pugui contenir. L´usuari serà el responsable de l´ús que doni a aquesta informació.
T´avisem quan tinguem un anunci com aquest?
Crea la teva alerta i nosaltres t´avisarem per correu electrònic quan hi hagin nous anuncis o siguin modificats