Favorito y comentario
Pis amb calefacció a Fuentecillas - S7 - S8 Burgos
Característiques principals
- 159 m2
- 818 €/m2
Informació detallada
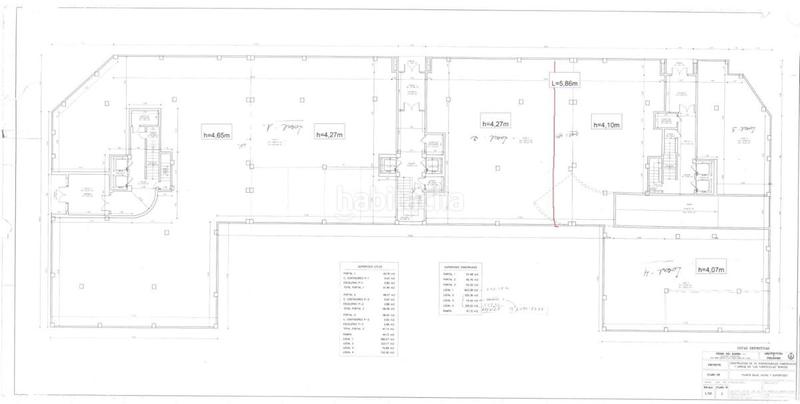
CONSTRUYE TU VIVIENDA A MEDIDA. . INVERSIÓN SEGURA EN FUENTECILLAS: LOCAL COMERCIAL CON OPCIÓN RESIDENCIAL. Local en bruto en una de las zonas con mayor proyección de Burgos. Ideal tanto para emprendedores como para inversores que buscan rentabilidad y flexibilidad. Tú decides el destino: negocio, viviendas o ambos. Superficies disponibles desde 159 m² hasta 1.000 m², totalmente adaptables a tus necesidades: Restaurante. Oficinas. Gimnasio. Supermercado. Edificio residencial moderno. CARACTERÍSTICAS DESTACADAS: Ubicación estratégica en una zona en plena expansión, con gran visibilidad y excelente comunicación. Fachadas a dos y tres calles: más luz natural, más visibilidad, más valor. Posibilidad de abrir los huecos del tamaño que necesites. Alturas entre 4,10 m y 4,65 m: posibilidad de crear entreplantas o espacios diáfanos y luminosos. Uso mixto: combina lo comercial con lo residencial para maximizar tu inversión. Este inmueble no es solo un local, es una oportunidad de construir desde cero un proyecto rentable, moderno y con visión de futuro. Anticípate al desarrollo de Fuentecillas. Invierte antes que suban los precios. Tres posibilidades de compra. 159 m² por 130.000 €300 m² por 260.000 €600 m² por 460.000 €VIVE CON CALIDAD. CONTACTA.Características del inmueble:- exterior
última modificació
Distribució
- Superfície 159 m2
Característiques generals
- Calefacció
Galeria
Ubicació
Fuentecillas - S7 - S8