Comentari guardat!
Només ho veuràs tú
Comment saved!
Afegeix la teva valoració i/o un comentari per aquest anunci. Només el veuràs tu
Oportunitat 275.000 € Avisa´m si baixa

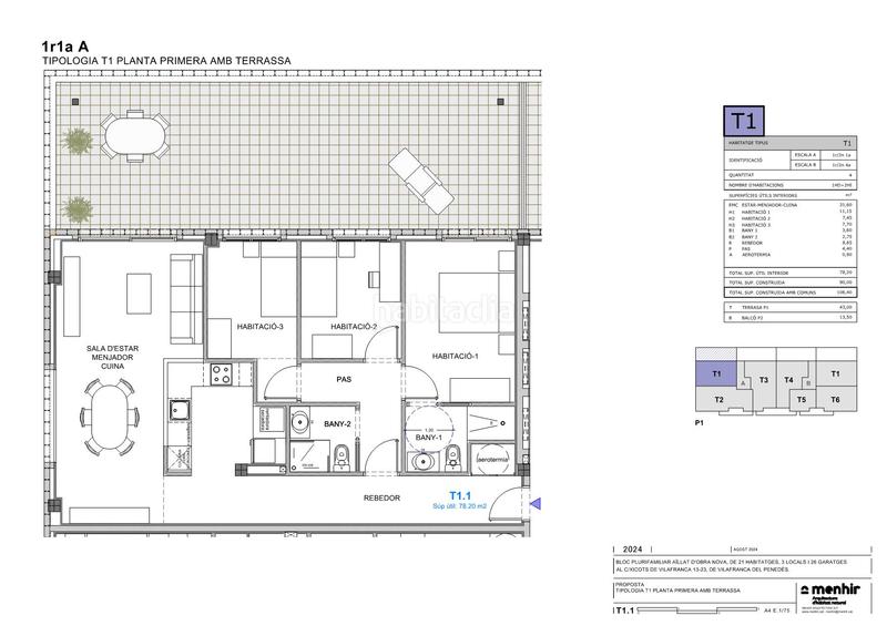
Pis 90m2 a carrer dels xicots de vilafranca 13 a La Girada Vilafranca del Penedès

Carrer dels Xicots de Vilafranca 13

  • des de 90 m2
  • 3 hab.
  • 2 banys
  • 3.056 €/m2
LA GIRADA
Pertany a la promoció

LA GIRADA

Esta promoción tiene 14 tipos de habitatges Veure promoció

Promoción de obra nueva en el barrio de la Girada de Vilafranca del Penedès.

Edificio plurifamiliar aislado de 21 viviendas, locales comerciales y aparcamientos.

Situado en Rda. de Mar con entrada a los portales por la calle Xicots de Vilafranca nº 13-23, se encuentra en uno de los barrios con más dinamismo de Vilafranca, que dispone de todos los servicios, comercios, supermercados, cafeterías, heladerías, restaurantes, guarderías, escuela e instituto, cerca del centro, a un paso de las principales vías de comunicación, N-340, AP-7, C-15, ya sólo 15 minutos de la playa.

Este edificio se ha diseñado pensando en satisfacer las máximas exigencias en cuanto a ubicación, acabados y eficiencia energética, pues sabemos que hoy en día son factores claves para garantizar la máxima calidad de vida de las personas que irán a vivir. La promoción tendrá viviendas de 1,3 y 4 habitaciones y dúplex con grandes terrazas, y todas las viviendas gozarán de una terraza apto para poder comer o cenar y disfrutar de las vistas y al aire libre ya que somos conscientes de que es muy importante tener estos espacios habitables exteriores."


El edificio será compatible con el respeto del medio ambiente al reducir al máximo la huella Ecológica, por los fantásticos aislamientos con que se construirá, y por la instalación de aerotermia con que irán equipados todos los viviendas, que será la encargada de generar la calefacción con suelo radiante, el agua caliente sanitaria y sistema de aire frío y caliente en cada estancia por conductos.

última modificació

Distribució

  • 3 habitacions
  • Superfície 90 m2
  • Terrassa 43 m2
  • 2 banys
  • Cuina Tipus Office

Característiques generals

  • Calefacció
  • Plaça aparcament
  • Aire Acondicionat
  • Planta número 2
  • Certificat energètic :
    Consumo:
    G
    999 kW h m2 / año
    Emisiones:
    G
    999 kg CO2 m2 / año

Equipament comunitari

  • Ascensor
Anunci: 54824000000008

Ubicació

La Girada Carrer dels Xicots de Vilafranca 13

Navega pel mapa fent clic a sobre
275.000 € Preu de l´anunci
2.765 €/m2€/m2 población
3.056 €/m2€/m2 de l´anunci
Veure evolució €/m2 a Vilafranca del Penedès
T´avisem quan tinguem un anunci com aquest? Crea la teva alerta i nosaltres t´avisarem per correu electrònic quan hi hagin nous anuncis o siguin modificats
 

Pertany a la promoció LA GIRADA

Vilafranca del Penedès - Carrer dels Xicots de Vilafranca, 13
Promoción LA GIRADA Vilafranca del Penedès - Carrer dels Xicots de Vilafranca, 13 des de 275.000 € Veure promoció
Altres tipus d´habitatge d´aquesta promoció

Contactar ROVIRA & JUBERT FINQUES

Referència de l´anunci habitaclia/T1 2º-4ª Esc B:

Veuràs el telèfon després d´enviar el contacte a l´anunciant perquè et pugui atendre.
Veuràs el telèfon després de contactar
Enviant…