Comentari guardat!
Només ho veuràs tú
Comment saved!
Afegeix la teva valoració i/o un comentari per aquest anunci. Només el veuràs tu
1.300.000 € Avisa´m si baixa

Pis a calle carreteria 82 a Centro Histórico Málaga

  • 161 m2
  • 3 hab.
  • 2 banys
  • 8.075 €/m2

ESPECTACULAR PISO EN EL CORAZÓN DE MÁLAGA

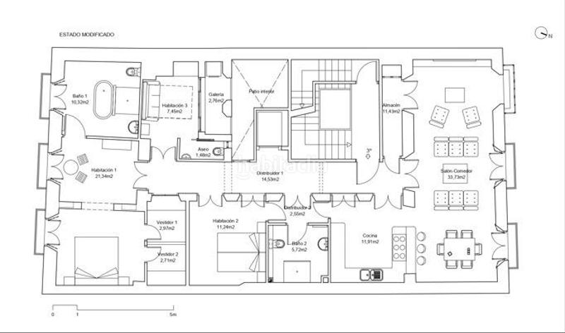
¡ATENCIÓN! ¿Busca un piso único y exclusivo de 1868 completamente renovado de arriba abajo? Este es el suyo. El piso se destinó originalmente como burdel privado hace mucho tiempo y luego cayó en desuso. Cuando los actuales propietarios lo compraron en 2018, hicieron un gran esfuerzo por respetar los elementos originales de la vivienda, al tiempo que realizaron mejoras. Encontrará los techos altos originales, la carpintería y los espacios, todo en consonancia con ello. La vivienda tiene 158 m², es la única unidad de la tercera planta e incluso cuenta con calefacción por suelo radiante en toda la casa.

La vivienda sería perfecta para una familia situada en pleno centro, pero sin el bullicio ni el ruido. Además, cuenta con una licencia de Airbnb en pleno funcionamiento que se ha mantenido si así lo desea. Una de las características más singulares de la vivienda es que el ascensor se abre directamente en la vivienda con una llave especial, por lo que solo las personas que tienen esa llave pueden acceder a ella.

Las fotos y los planos son reales y se tomaron la semana pasada. No son representaciones ni se ha utilizado ninguna IA. Si tiene alguna pregunta, no dude en ponerse en contacto con nosotros, ¡gracias!

última modificació

Distribució

  • 3 habitacions
  • Superfície 161 m2
  • 2 banys

Característiques generals

  • Calefacció
  • Certificat energètic :
    Consumo:
    E
    84 kW h m2 / año
    Emisiones:
    E
    15 kg CO2 m2 / año

Equipament comunitari

  • Ascensor
Anunci: 51208000000484

Ubicació

Centro Histórico Calle CARRETERIA 82

Navega pel mapa fent clic a sobre
1.300.000 € Preu de l´anunci
5.531 €/m2€/m2 distrito
8.075 €/m2€/m2 de l´anunci
Veure evolució €/m2 a Málaga (Centro)
T´avisem quan tinguem un anunci com aquest? Crea la teva alerta i nosaltres t´avisarem per correu electrònic quan hi hagin nous anuncis o siguin modificats
 

Contactar Remax Puerto

Referència de l´anunci habitaclia/RMES51502:

Veuràs el telèfon després d´enviar el contacte a l´anunciant perquè et pugui atendre.
Veuràs el telèfon després de contactar
Enviant…