Favorito y comentario
Pis a avenida central 38 a Costa Caribe Oropesa del Mar
Característiques principals
- 61 m2
- 2 hab.
- 1 bany
- 2.048 €/m2
Informació detallada
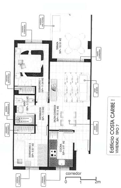
APARTAMENTO CON MAGNÍFICAS VISTAS - MARINA D'OR - MAGIC WORLD - 2 DORMITORIOS - PISCINA - PARKING - TRASTERO !
Se vende magnífico apartamento en Marina D'Or – Magic World, situado en la quinta planta, con orientación sur que garantiza una excelente entrada de luz natural durante todo el día. La vivienda se encuentra en perfecto estado y lista para entrar a vivir.
El apartamento se distribuye en dos dormitorios dobles con armarios empotrados y ventiladores, un baño completo con bañera, un luminoso salón-comedor totalmente equipado y amueblado, y una cocina equipada con algunos electrodomésticos nuevos. Destaca su amplia terraza que dispone de toldos, ventilador y sobretodo unas magníficas vistas despejadas, perfecta para disfrutar del buen clima durante todo el año.
La propiedad incluye plaza de aparcamiento en sótano y trastero en planta 8, lo que añade comodidad y espacio de almacenamiento adicional. La urbanización ofrece zonas ajardinadas, piscina comunitaria y área infantil, lo que la convierte en una opción ideal tanto para familias como para quienes buscan una segunda residencia cerca del mar.
Una excelente oportunidad para disfrutar del entorno privilegiado de Oropesa del Mar, con todos los servicios de Marina D’Or a pocos pasos.
Más información: Lucas Castro iad España
Solicite el Tour Virtual
última modificació
Distribució
- 2 habitacions
- Superfície 61 m2
- 1 bany
Característiques generals
- Plaça aparcament
- Aire Acondicionat
- Any construcció 2005
Equipament comunitari
- Ascensor
Galeria
Ubicació
Costa Caribe Avenida Central 38
