Visita virtual
Comentari guardat!
Només ho veuràs tú
Comment saved!
Afegeix la teva valoració i/o un comentari per aquest anunci. Només el veuràs tu

Pis amb calefacció a Centro Mutxamel

  • 187 m2
  • 5 hab.
  • 1 bany
  • 588 €/m2

OPORTUNIDAD DE PROYECTO EXCLUSIVO EN MUCHAMIEL
Hazte con esta propiedad, y realiza un proyecto único en este segundo piso, enclavado en un edificio de 3 propiedades con mucha historia
Me dirijo a usted para presentarle una oportunidad única de inversión y reforma: un inmueble con gran potencial, situado a escasos metros del Ayuntamiento de Mutxamel.

Esta propiedad destaca por su encanto singular, gracias a sus techos altos, su historia, y las terrazas que crean un espacio único de desconexión. A pesar de su ubicación céntrica, con todos los servicios a un paso, se encuentra en una zona tranquila y pintoresca, con buenas conexiones a la autovía y la AP-7 gratuita, permitiendo un rápido acceso a cualquier punto de Alicante y a la playa en solo 5 minutos en coche.

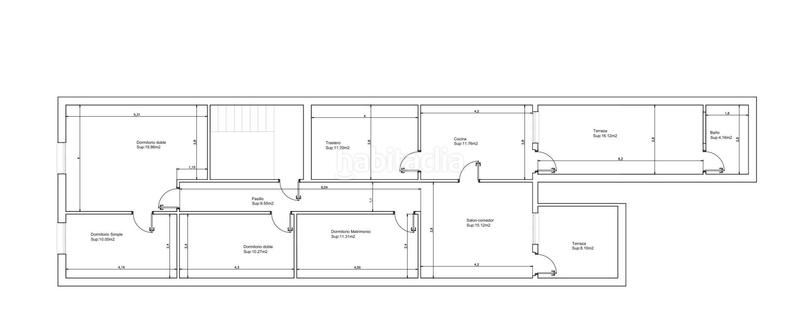
La vivienda se distribuye de la siguiente manera:

- Dormitorio doble: 19.86m²
- Dormitorio simple: 10m²
- Dormitorio doble: 10m²
- Dormitorio: 11m²
- Dormitorio: 11m²
- Cocina: 11.76m²
- Salón: 15.12m²
- Baño: 4.16m²
- Dos terrazas: 8.10m² y 16.12m²
-Buhardilla 78m2
Información Importante sobre el Proyecto:

Usted sería el último comprador de la tercera vivienda. Tras la compraventa, se deberá formalizar la comunidad de propietarios para proceder a la reforma integral del edificio, que incluirá el refuerzo de estructuras, vigas y la cubierta.

Es crucial destacar que, al tratarse de un edificio histórico, el Ayuntamiento cubrirá el 40% del coste de la reforma, si bien existirá la obligación de respetar la estética original del inmueble.

Le invito a visitar la propiedad para apreciar su potencial y a consultar nuestras opciones de financiación. Trabajamos con la colaboración de la mayoría de los bancos nacionales para ofrecerle excelentes condiciones.

Agradecería que leyera el anuncio completo adjunto para comprender en detalle todos los aspectos de este proyecto.

última modificació

Distribució

  • 5 habitacions
  • Superfície 187 m2
  • 1 bany

Característiques generals

  • Calefacció
  • Sense plaça aparcament
  • Planta número 2
  • Any construcció 1903
  • Certificat energètic :
    Exempt
Anunci: 19272000027761

Ubicació

Centro

Navega pel mapa fent clic a sobre
110.000 € Preu de l´anunci
2.839 €/m2€/m2 población
588 €/m2€/m2 de l´anunci
79% més econòmic que la mitja*
Quant t´agradaria pagar?
Veure evolució €/m2 a Mutxamel
T´avisem quan tinguem un anunci com aquest? Crea la teva alerta i nosaltres t´avisarem per correu electrònic quan hi hagin nous anuncis o siguin modificats
 

Contactar SAFTI ESPAÑA

Referència de l´anunci habitaclia/REF_36045:

Veuràs el telèfon després d´enviar el contacte a l´anunciant perquè et pugui atendre.
Veuràs el telèfon després de contactar
Enviant…