Favorito y comentario
Pis amb aparcament a Ciudad Jardín - Zoco Córdoba
Característiques principals
- 122 m2
- 3 hab.
- 2 banys
- 2.287 €/m2
Informació detallada
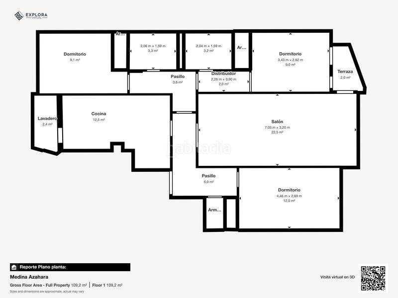
PISO EN MEDINA AZAHARA CON COCHERA
Piso amplio y muy luminoso con 3 dormitorios, en tercera planta con ascensor, situado en la zona de Medina Azahara.
La vivienda cuenta con hall de entrada, salón con acceso a terraza exterior, cocina independiente con terraza-lavadero, tres dormitorios y dos baños completos. Además, incluye trastero y plaza de garaje en el mismo edificio.
Es una vivienda cómoda, bien distribuida y lista para entrar a vivir.
A pocos minutos del centro de Córdoba y con todos los servicios a mano: supermercados, colegios, centro de salud, parques, tiendas y buena conexión con transporte público.
No dude en venir a verla, le organizamos una visita sin compromiso alguno.
El comprador tendrá un coste adicional de un 2,5% más IVA del precio de venta final, por el servicio de gestión, asesoramiento y formalización del proceso de compra. Este importe no está incluido en el precio publicado en venta.
INFORMACIÓN ADICIONAL. Para cumplir con la normativa vigente tenemos a disposición del cliente el Documento de Información Abreviada D. I. A. Los precios indicados pueden sufrir alteraciones sin previo aviso. Los GASTOS DE LA COMPRA serán según ley (Notaria, Registro e Impuestos) y no están incluidos en el precio señalado.
última modificació
Distribució
- 3 habitacions
- Superfície 122 m2
- 2 banys
- Traster
Característiques generals
- Plaça aparcament
- Planta número 3
- Any construcció 1999
- A prop de transport públic
Equipament comunitari
- Ascensor
Galeria
Ubicació
Ciudad Jardín - Zoco Avenida Avenida de Medina Azahara
