Comentari guardat!
Només ho veuràs tú
Comment saved!
Afegeix la teva valoració i/o un comentari per aquest anunci. Només el veuràs tu
Oportunitat 440.000 € Avisa´m si baixa

Pis amb calefacció a El Coll Sant Cugat del Vallès

  • 77 m2
  • 2 hab.
  • 1 bany
  • 5.714 €/m2

Ático en venta en Sant Cugat centro

ÁTICO TOTALMENTE REFORMADO EN VENTA EN EL CENTRO DE SANT CUGAT

AProperties les presenta en exclusiva, este luminoso y acogedor ático, totalmente reformado siguiendo las actuales tendencias en diseño de interiores. Ideal para una pareja, el piso está ubicado en una de las mejores zonas de Sant Cugat, a apenas 1 minuto a pie del Monestir, en pleno centro.

Esta propiedad reformada íntegramente, dispone de una elegante cocina abierta al salón comedor para aprovechar al máximo la luz natural. Tiene además una habitación individual, una doble y un precioso baño de tres piezas, recubierto de microcemento, griferías en negro, etc.

La joya de este piso es la terraza orientada a sud, de más de 15 mts2 para disfrute de un espacio abierto, juegos, cenas etc y con unas buenas vistas. La vivienda tiene una superficie de 77 mts2 construidos según catastro.

La vivienda dispone de aire acondicionado, radiadores eléctricos y gas. No dude en contactar con aProperties para conocer más detalles sobre este piso, igualmente de necesitas financiación para comprar la vivienda de sus sueños, le hacemos un estudio hipotecario sin compromiso alguno.
Ref. VSC2510010

última modificació

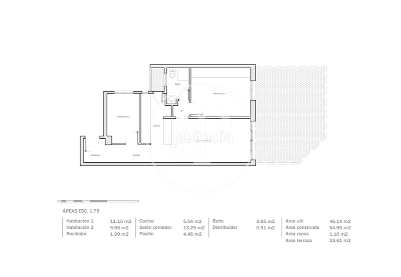
Distribució

  • 2 habitacions
  • Superfície 77 m2
  • 1 bany
  • Traster

Característiques generals

  • Calefacció
  • Sense plaça aparcament
  • Aire Acondicionat
  • Certificat energètic :
    Consumo:
    E
    125 kW h m2 / año
    Emisiones:
    E
    30 kg CO2 m2 / año

Equipament comunitari

  • Ascensor
Anunci: 4737003826275

Ubicació

El Coll Avinguda de Cerdanyola

Navega pel mapa fent clic a sobre
440.000 € Preu de l´anunci
5.620 €/m2€/m2 población
5.714 €/m2€/m2 de l´anunci
Veure evolució €/m2 a Sant Cugat del Vallès
T´avisem quan tinguem un anunci com aquest? Crea la teva alerta i nosaltres t´avisarem per correu electrònic quan hi hagin nous anuncis o siguin modificats
 

Contactar APROPERTIES REAL ESTATE - VALLÉS OCCIDENTAL

Referència de l´anunci habitaclia/VSC2510010:

Veuràs el telèfon després d´enviar el contacte a l´anunciant perquè et pugui atendre.
Veuràs el telèfon després de contactar
Enviant…