Favorito y comentario
Pis amb calefacció a Els Pavos Blanes
Característiques principals
- 80 m2
- 2 hab.
- 2 banys
- 2.875 €/m2
Informació detallada
Bajos a estrenar con 2 hab dobles, 2 baños y 2 terrazas 2322m2
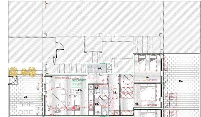
EXCLUSIVA LA LLAVE - Magnifico bajos de obra nueva con 115 m2 utiles, 2 terrazas inlcluidas de 23 + 22m2 en una de las mejores zonas de Blanes, Can Borrell!
Cuenta con unos 80 m2 de vivienda distribuidos en gran salón comedor con cocina office integrada con muebles de gran calidad.
Dos habitaciones dobles con zona vestidor, dos baños completos, uno en suitte.
Suelos de gres, persianas eléctricas y calefacción frio y calor por suelo radiante.
Dispone de 2 terrazas una delantera de unos 23 m2 y otra trasera de unos 22 m2 ideal para las cenas de verano o para ocio de los mas pequeños de la casa.
Zona ideal, cerca de colegios, servicios, comercios y parques a un paso de todo.
Las fotos son REFENCIALES en cuanto a calidades en la reforma. La distribucion esta en el plano que se adjunta.
Nota informatica: se pueden entregar a finales de septiembre- octubre de este año.
No dejes escapar esta oportunidad y estrena piso con terraza!
En cumplimiento de la ley 3/2917 del 13 de febrero de 2018 del CODIGO CIVIL DE CATALUNYA, por el que se aprueba el Reglamento de Información al Consumidor en la compraventa y arrendamiento de viviendas en CATALUÑA, se informa al cliente que los gastos notariales, registrales e impuestos que le sean de aplicación ( ITP ó IVA AJD ) y otros gastos inherentes a la compraventa no están incluidos en el precio.
última modificació
Distribució
- 2 habitacions
- Superfície 80 m2
- Terrassa 35 m2
- 2 banys
- Cuina Tipus Office: No
Característiques generals
- Calefacció
- Sense plaça aparcament
- Aire Acondicionat
- Any construcció 2025
Equipament comunitari
- Sense ascensor
Galeria
Ubicació
Els Pavos
